Maison neuve à
Albi
(81000) Référence :
JT2304329_5
Prix du projet : Maison avec Terrain
prix 296 380 €
- 5 pièces
- 4 chambres
- Surface maison 113 m2
Modèle Lumi Maison ossature bois, plain-pied 113 m²
Maisons France Confort Albi vous présente le modèle Lumi, une maison plain-pied en ossature bois de 113 m² alliant volumes généreux, luminosité et agencement réfléchi idéale pour une vie de famille moderne, confortable et économe en énergie.
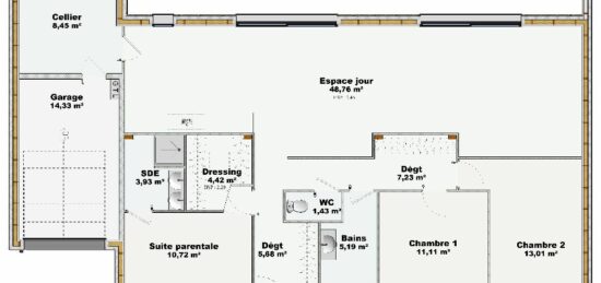
Espace jour convivialité et lumière
Pièce de vie : 45 m²
Vaste espace traversant favorisant la circulation et la luminosité naturelle. Cuisine ouverte possible, circulation fluide entre les zones salon, salle à manger et accès direct au cellier/groupe service.
Espace nuit confort et intimité
Suite parentale : 18 m²
Suite généreuse avec dressing, salle d'eau privative (douche + vasque) et WC intégré un espace intime et fonctionnel.
3 chambres supplémentaires : surfaces comprises entre 10,60 m² et 12,12 m², toutes faciles à aménager.
Salle de bains (familiale) et WC indépendant pour plus de confort au quotidien.
Annexes et rangement
Cellier : 6,80 m², accessible depuis la pièce de vie et communicant avec le garage pratique pour les courses et le stockage.
Garage intégré : 15 m², attenant, offrant stationnement et rangement supplémentaire.
Points forts du modèle Lumi
Conception ossature bois : performance thermique, confort intérieur et esthétique contemporaine.
Plain-pied : accessibilité, simplicité d'usage et confort pour tous les âges.
Volumes généreux et nombreux rangements pour une maison facile à vivre.
Possibilités de personnalisation : choix des finitions, implantation des baies vitrées, options énergie (isolation renforcée, pompe à chaleur, panneaux solaires), aménagements extérieurs (pergola, terrasse, terrassement)...
Pour qui ?
Ce modèle convient aux familles souhaitant vivre sur un seul niveau sans sacrifier l'espace ni le confort : suite parentale, chambres bien dimensionnées, cellier pratique et garage intégré.
📞 Pour une étude personnalisée de votre projet et un chiffrage :
Maisons France Confort Albi 05 63 43 56 40
📝 Nous
Mentions légales
Terrain proposé par un partenaire foncier selon disponibilités et autorisation de publicité au prix de 65 000 €. Hors droit d'enregistrement et frais de notaire. Maison proposée, avec un contrat de construction de maison individuelle, dans le cadre de la loi du 19/12/1990, au prix de 231 380 € (Hors branchements et raccordements, papiers peints, peintures, revêtement de sol dans les chambres, qui sont chiffrés dans les travaux qui restent à charge du client. Tarif modifiable sans préavis). Étiquette énergie : A. Différents modèles disponibles pour ce terrain. Assurances et garanties du constructeur comprises (RC professionnelle, décennale, dommage ouvrage).Agence Maisons France Confort de Albi (81000)
- Téléphone :
- 05 63 43 56 40
- Adressse :
- 187 avenue Colonel Teyssier
81000 Albi, France
