Maison neuve à
Andel (22400) Référence : SR2325815_3

Prix du projet : Maison avec Terrain

prix 228 000 €

  • 5 pièces
  • 4 chambres
  • Surface maison 88 m2

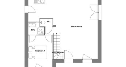
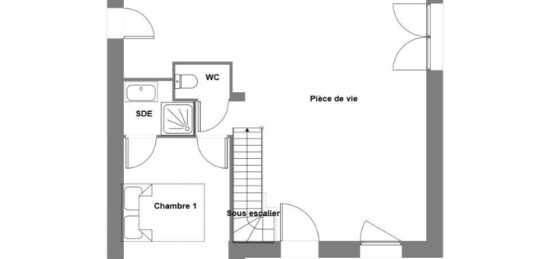
VENTE : maison F5 (88 m²) à Andel
MAISON 5 PIÈCES NEUVE - PROCHE DE SAINT-BRIEUC
À vendre à 13 km de la Manche et à deux pas de Saint-Brieuc, nous sommes heureux de vous présenter cette maison de 5 pièces de 88 m² à Andel (22400). Elle offre quatre chambres, une cuisine et une salle de bains.
Le terrain de la maison s'étend sur 436 m².
C'est une maison de 2 niveaux. Elle est neuve.
L'École Primaire Privée Sainte Anne est implantée à moins de 10 minutes à pied. Côté transports en commun, il y a deux gares (Lamballe et Yffiniac) à moins de 10 minutes en voiture. La nationale N12 est accessible à 2 km. On trouve un tennis et une boulangerie à proximité.
Elle est à vendre pour la somme de 228 000 €.
N'hésitez pas à prendre contact avec notre agence (ROGER Samuel : 02-96-78-52-58) pour plus d'informations sur cette maison. Concrétisez vos projets immobiliers avec Maisons de l'Avenir Saint-Brieuc.

Mentions légales

Maisons de l’Avenir, constructeur de maisons individuelles, propose en collaboration avec ses partenaires fonciers, une sélection de terrains constructibles, selon disponibilité, pour la construction de maisons neuves définies par le constructeur, avec un contrat de construction de maison individuelle, dans le cadre de la loi du 19/12/1990. Prix net, hors frais notariés, d'enregistrement et de publicité foncière

Terrain proposé au prix de : 49 000 €

Maison proposée au prix de : 179 000 €

Etiquette énergie : A. Assurances et garanties du constructeur (RC professionnelle, décennale, dommage ouvrage, Garantie de livraison à prix et délai convenu). https://www.maisonsdelavenir.com/mentions-legales/

Contactez l'agence de Saint-Brieuc

02 96 78 52 58

    * Champs obligatoires

    Vos informations sont traitées par HEXAOM et transmises à un conseiller commercial qui vous contactera afin de répondre à votre demande. Les plans et images présentés sur notre site sont la propriété d’HEXAOM et ne peuvent pas être reproduits sans son accord. Pour retrouver notre politique de protection des données personnelles et exercer vos droits conformément à la « loi informatique et liberté » cliquez-ici.