Maison neuve à
Angerville
(91670) Référence :
SA2329357_2
Prix du projet : Maison avec Terrain
prix 315 600 €
- 6 pièces
- 5 chambres
- Surface maison 114 m2
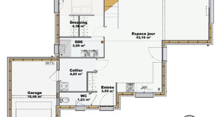
VENTE d'une maison F6 (114 m²) à Angerville
MAISON 6 PIÈCES NEUVE
Au pied de la gare, en vente à Angerville (91670), Maisons France Confort Ris-Orangis vous propose cette maison de 6 pièces de 114 m².
C'est une maison de 2 niveaux. Elle propose cinq chambres, une cuisine et deux salles de bains. Cette maison est neuve.
Le terrain de la propriété est de 936 m².
On trouve l'École Élémentaire le Petit Nice et l'École Maternelle le Petit Nice à moins de 10 minutes à pied et deux crèches. Côté transports, il y a la gare Angerville dans les environs. On trouve un tennis, un bassin de natation, des commerces, deux boulangeries, un supermarché, des épiceries et une boucherie-charcuterie à proximité de la maison.
Son prix de vente est de 315 600 €.
N'hésitez pas à prendre contact avec notre agence (Sabrina AUGUSTINE : 06-23-03-68-32) pour toute information sur cette maison, sur les modalités de vente ou sur les démarches à suivre. Maisons France Confort Ris-Orangis vous accompagne dans tous vos projets immobiliers et à toutes les étapes de votre projet.
Mentions légales
Terrain proposé par un partenaire foncier selon disponibilités et autorisation de publicité au prix de 95 000 €. Hors droit d'enregistrement et frais de notaire. Terrain + Maison proposés au prix de 220 600 € (Hors branchements et raccordements, papiers peints, peintures, revêtement de sol dans les chambres. Tarif modifiable sans préavis). Etiquette énergie : A. Différents modèles disponibles pour ce terrain. Assurances et garanties du constructeur (RC professionnelle, décennale, dommage ouvrage, garantie de remboursement de l'acompte, livraison à prix et délai convenu) : https://www.maisons-france-confort.fr/mentions-legales/. HEXAOM Services est enregistré auprès de l'ORIAS en tant que Courtier en financement, Niveau 1, sous le numéro 14001345.Agence Maisons France Confort de Ris-Orangis (91130)
- Téléphone :
- 01 60 47 83 15
- Adressse :
- 57 rue Albert Rémy
91130 Ris-Orangis, France
