Maison neuve à
Arsac
(33460) Référence :
JR2267060_3
Prix du projet : Maison avec Terrain
prix 290 500 €
- 4 pièces
- 2 chambres
- Surface maison 65 m2
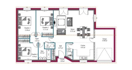
VENTE : maison F4 (65 m²) à Arsac
CENTRE-VILLE - MAISON 4 PIÈCES NEUVE
En vente : à 11 km de l'océan Atlantique et à quelques kilomètres de Bordeaux, notre agence Maisons de la Côte Atlantique Bordeaux est heureuse de vous présenter cette maison de 4 pièces de plain-pied de 65 m² et de 510 m² de terrain, en centre-ville d'Arsac (33460).
Conçue de plain-pied, elle dispose de deux chambres, d'une cuisine et d'une salle de bains. Cette maison est neuve.
Il y a l'École Maternelle d'Aline, l'École Élémentaire d'Aline et le Collège d'Arsac à moins de 10 minutes à pied. Côté transports, on trouve quatre gares à moins de 10 minutes en voiture. Les autoroutes A630 et A10 et la nationale N230 sont accessibles à moins de 20 km. Il y a un tennis, un commerce, deux supermarchés, deux boulangeries, un bureau de poste et une boucherie-charcuterie à quelques minutes.
Son prix de vente est de 290 500 €.
Contactez Jonathan RAIMBAULT (tél : 07-69-40-4O-06) pour obtenir de plus amples informations sur le bien, sur les modalités de vente ou sur les démarches à suivre. Maisons de la Côte Atlantique Bordeaux vous accompagne à toutes les étapes de votre projet et dans tous vos projets immobiliers.
Agence Maisons de la Côte Atlantique de Bordeaux (33000)
- Téléphone :
- 05 57 19 56 19
- Adressse :
- Homexpo - Pavillon HORIZON
33000 Bordeaux, France
