Maison neuve à
Artannes-sur-Indre (37260) Référence : SD2341956_2

Prix du projet : Maison avec Terrain

prix 237 000 €

  • 4 pièces
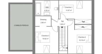
  • 3 chambres
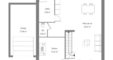
  • Surface maison 80 m2

Belle maison de m² avec des combles aménagés.
Cette maison vous offre une grande pièce à vivre de 43 m² et 3 belles chambres dont une chambre avec un dressing.
Vous disposerez également d'un bureau au RDC pouvant se transformer en chambre.
Un garage et un cellier sont également prévus pour un maximum de confort.

Côté prestations : Pompe à chaleur avec plancher chauffant, Menuiseries RAL 7016

CONSTRUCTIONS IDEALE DEMEURE a sélectionné avec un partenaire foncier un terrain pour construire cette maison.

Je reste disponible pour toutes demandes de renseignements, n'hésitez pas me contacter : Stéphane Digneton : O6.64.92.89.69.

Mentions légales

Terrain proposé par un partenaire foncier selon disponibilités et autorisation de publicité au prix de 62 500 €. Hors droit d'enregistrement et frais de notaire. Maison proposée, avec un contrat de construction de maison individuelle, dans le cadre de la loi du 19/12/1990, au prix de 174 500 € (Hors branchements et raccordements, papiers peints, peintures, revêtement de sol dans les chambres, qui sont chiffrés dans les travaux qui restent à charge du client. Tarif modifiable sans préavis). Étiquette énergie : A. Différents modèles disponibles pour ce terrain. Assurances et garanties du constructeur comprises (RC professionnelle, décennale, dommage ouvrage).

Contactez l'agence de Saint-Cyr-sur-Loire

02 47 55 88 12

    * Champs obligatoires

    Vos informations sont traitées par HEXAOM et transmises à un conseiller commercial qui vous contactera afin de répondre à votre demande. Les plans et images présentés sur notre site sont la propriété d’HEXAOM et ne peuvent pas être reproduits sans son accord. Pour retrouver notre politique de protection des données personnelles et exercer vos droits conformément à la « loi informatique et liberté » cliquez-ici.