Maison neuve à
Attainville
(95570) Référence :
FBATTAINVILLE95_12
Prix du projet : Maison avec Terrain
prix 392 000 €
- 5 pièces
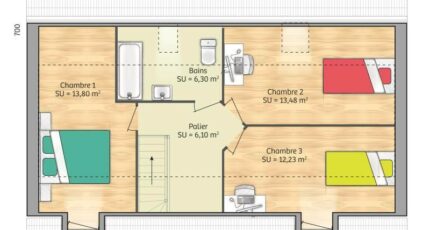
- 3 chambres
- Surface maison 80 m2
Attainville : maison F5 (80 m²) à vendre
EMPLACEMENT PRIVILÉGIÉ - MAISON 5 PIÈCES NEUVE
À vendre : à quelques minutes de la gare de Montsoult-Maffliers (Paris à 25 min avec le Transilien H), nous vous présentons cette maison de 5 pièces de 80 m² bénéficiant d'un emplacement privilégié dans Attainville (95570).
Il s'agit d'une maison de 2 niveaux. Son intérieur est composé de trois chambres, d'une cuisine et d'une salle de bains. La maison est neuve.
Le terrain du bien s'étend sur 436 m².
Cette maison se trouve dans un secteur convoité. L'École Primaire Micheline Lefèvre est implantée à moins de 10 minutes à pied. Niveau transports, il y a la ligne de RER D (Villiers-Le-Bel-Gonesse-Arnouville) ainsi que 25 gares à moins de 10 minutes en voiture. On trouve un tennis à quelques minutes de la maison.
Son prix de vente est de 392 000 €.
Contactez Fabrice BONELLO (tél : 06-09-50-50-09) pour plus d'informations sur la maison. Maisons France Confort Beauvais est là pour vous accompagner dans tous vos projets immobiliers.
Mentions légales
Terrain proposé par un partenaire foncier selon disponibilités et autorisation de publicité au prix de 210 000 €. Hors droit d'enregistrement et frais de notaire. Maison proposée, avec un contrat de construction de maison individuelle, dans le cadre de la loi du 19/12/1990, au prix de 182 000 € (Hors branchements et raccordements, papiers peints, peintures, revêtement de sol dans les chambres, qui sont chiffrés dans les travaux qui restent à charge du client. Tarif modifiable sans préavis). Étiquette énergie : A. Différents modèles disponibles pour ce terrain. Assurances et garanties du constructeur comprises (RC professionnelle, décennale, dommage ouvrage).Agence Maisons France Confort de Beauvais (60000)
- Téléphone :
- 03 44 04 40 04
- Adressse :
- 42 rue Pierre Jacoby
60000 Beauvais, France
