Maison neuve à
Attainville
(95570) Référence :
FBATTAINVILLE95_2
Prix du projet : Maison avec Terrain
prix 380 000 €
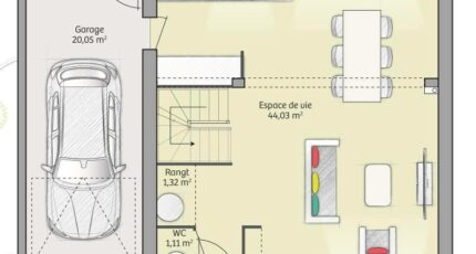
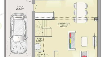
- 6 pièces
- 4 chambres
- Surface maison 91 m2
Maison F6 (91 m²) à vendre à Attainville
EMPLACEMENT PRIVILÉGIÉ - MAISON 6 PIÈCES NEUVE
À proximité de la gare de Montsoult-Maffliers (Paris à 25 min par le Transilien H), en vente bénéficiant d'un emplacement d'exception dans Attainville (95570), nous sommes heureux de vous présenter cette maison de 6 pièces de 91 m².
C'est une maison de 2 niveaux. Elle inclut quatre chambres, une cuisine et une salle de bains. La maison est neuve.
Le terrain de la propriété s'étend sur 436 m².
Cette propriété se trouve dans un quartier recherché. Il y a l'École Primaire Micheline Lefèvre à moins de 10 minutes à pied. Côté transports en commun, on trouve la ligne de RER D (Villiers-Le-Bel-Gonesse-Arnouville) ainsi que 25 gares à moins de 10 minutes en voiture. Il y a un tennis à quelques minutes.
Elle est à vendre pour la somme de 380 000 €.
Prenez contact avec Fabrice BONELLO (06-09-50-50-09) pour toute information sur la maison.
Mentions légales
Terrain proposé par un partenaire foncier selon disponibilités et autorisation de publicité au prix de 210 000 €. Hors droit d'enregistrement et frais de notaire. Terrain + Maison proposés au prix de 170 000 € (Hors branchements et raccordements, papiers peints, peintures, revêtement de sol dans les chambres. Tarif modifiable sans préavis). Etiquette énergie : A. Différents modèles disponibles pour ce terrain. Assurances et garanties du constructeur (RC professionnelle, décennale, dommage ouvrage, garantie de remboursement de l'acompte, livraison à prix et délai convenu) : https://www.maisons-france-confort.fr/mentions-legales/. HEXAOM Services est enregistré auprès de l'ORIAS en tant que Courtier en financement, Niveau 1, sous le numéro 14001345.Agence Maisons France Confort de Beauvais (60000)
- Téléphone :
- 03 44 04 40 04
- Adressse :
- 42 rue Pierre Jacoby
60000 Beauvais, France
