Maison neuve à
Attainville
(95570) Référence :
FBATTAINVILLE95_5
Prix du projet : Maison avec Terrain
prix 388 000 €
- 5 pièces
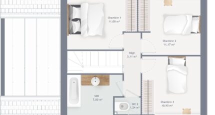
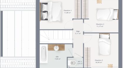
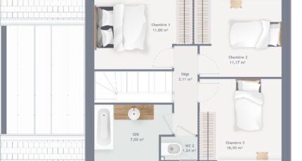
- 3 chambres
- Surface maison 90 m2
Maison de 5 pièces (90 m²) en vente à Attainville
EMPLACEMENT PRIVILÉGIÉ - MAISON 5 PIÈCES NEUVE
À vendre : proche du Transilien H (gare de Montsoult-Maffliers, 25 min de Paris), votre agence Maisons France Confort Beauvais est heureuse de vous présenter cette maison de 5 pièces de 90 m² bénéficiant d'un emplacement d'exception dans Attainville (95570).
Cette maison comporte 2 niveaux. Son intérieur propose trois chambres, une cuisine et une salle de bains. La maison est neuve.
Le terrain de la propriété est de 436 m².
Cette maison se situe dans un secteur convoité. Il y a l'École Primaire Micheline Lefèvre à moins de 10 minutes à pied. Niveau transports, on trouve la ligne de RER D (Villiers-Le-Bel-Gonesse-Arnouville) ainsi que 25 gares à moins de 10 minutes en voiture. Il y a un tennis dans les environs.
Elle est proposée à l'achat pour 388 000 €.
Contactez notre agence (Fabrice BONELLO : 06-09-50-50-09) pour plus de renseignements sur la maison ou sur les modalités de vente.
Mentions légales
Terrain proposé par un partenaire foncier selon disponibilités et autorisation de publicité au prix de 210 000 €. Hors droit d'enregistrement et frais de notaire. Terrain + Maison proposés au prix de 178 000 € (Hors branchements et raccordements, papiers peints, peintures, revêtement de sol dans les chambres. Tarif modifiable sans préavis). Etiquette énergie : A. Différents modèles disponibles pour ce terrain. Assurances et garanties du constructeur (RC professionnelle, décennale, dommage ouvrage, garantie de remboursement de l'acompte, livraison à prix et délai convenu) : https://www.maisons-france-confort.fr/mentions-legales/. HEXAOM Services est enregistré auprès de l'ORIAS en tant que Courtier en financement, Niveau 1, sous le numéro 14001345.Agence Maisons France Confort de Beauvais (60000)
- Téléphone :
- 03 44 04 40 04
- Adressse :
- 42 rue Pierre Jacoby
60000 Beauvais, France
