Maison neuve à
Aubais
(30250) Référence :
NM2352216_1
Prix du projet : Maison avec Terrain
prix 399 500 €
- 6 pièces
- 5 chambres
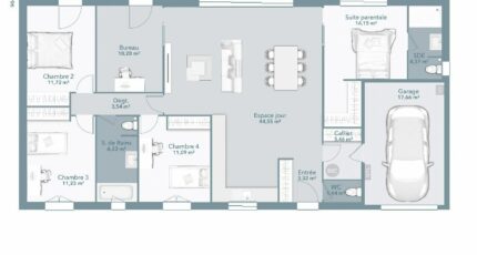
- Surface maison 125 m2
Maison Optima de 125 m² proposée ici sur 500 m² de terrain à Aubais.
Ce modèle personnalisable dispose de 4 chambres, cuisine ouverte sur spacieux séjour, et un cellier à l'arrière cuisine avec accès au garage.
GARANTIES CCMI COMPRISES + ETUDE DE SOL.
Contactez-nous pour plus d'informations - Agence Maisons France Confort St Gely du Fesc au 04 67 66 49 65.
Des écoles maternelles et élémentaires y sont implantées et une crèche. Niveau transports, il y a six gares à moins de 10 minutes en voiture. L'autoroute A9 est accessible à 4 km. On trouve les commodités, pharmacie, commerces, et boulangerie à quelques minutes.
Annonce proposée par un Agent Commercial Partenaire.
Mentions légales
Terrain proposé par un partenaire foncier selon disponibilités et autorisation de publicité au prix de 189 900 €. Hors droit d'enregistrement et frais de notaire. Terrain + Maison proposés au prix de 399 500 € (Hors branchements et raccordements, papiers peints, peintures, revêtement de sol dans les chambres. Tarif modifiable sans préavis). Etiquette énergie : A. Différents modèles disponibles pour ce terrain. Assurances et garanties du constructeur (RC professionnelle, décennale, dommage ouvrage, garantie de remboursement de l'acompte, livraison à prix et délai convenu) : https://www.maisons-france-confort.fr/mentions-legales/. HEXAOM Services est enregistré auprès de l'ORIAS en tant que Courtier en financement, Niveau 1, sous le numéro 14001345.Agence Maisons France Confort de Saint-Gély-du-Fesc (34980)
- Téléphone :
- 04 67 66 49 65
- Adressse :
- 22 rue des lavandes
34980 Saint-Gély-du-Fesc, France
