Maison neuve à
Auvers-sur-Oise
(95430) Référence :
SN2255140_1
Prix du projet : Maison avec Terrain
prix 350 000 €
- 5 pièces
- 3 chambres
- Surface maison 90 m2
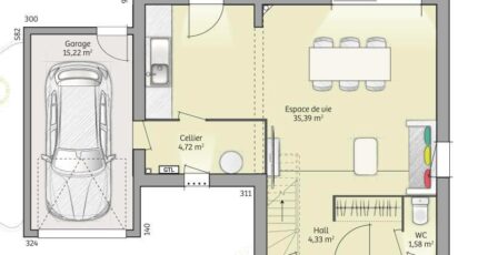
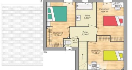
Maison T5 (90 m²) à vendre à Auvers-sur-Oise
PROCHE DE PARIS - MAISON 5 PIÈCES NEUVE
À deux pas de Paris, à vendre à Auvers-sur-Oise (95430), nous vous proposons cette maison de 5 pièces de 90 m² et de 500 m² de terrain. Elle dispose de trois chambres, d'une cuisine et d'une salle de bains.
Cette maison compte 2 niveaux. Elle est neuve.
Il y a l'École Primaire Vavasseur, l'École Élémentaire les Aunaies et le Collège Charles François Daubigny à moins de 10 minutes à pied. Niveau transports, on trouve la gare Auvers-sur-Oise dans les environs. Il y a un tennis, deux boulangeries, trois commerces, un supermarché, une boucherie-charcuterie et une épicerie à proximité du logement.
Elle est proposée à l'achat pour 350 000 €.
Prenez contact avec notre agence (Sylvestre NZARAMBA : 06-10-52-75-28) pour plus de renseignements sur la maison ou sur les démarches à suivre. Maisons France Confort Magny-le-Hongre est là pour vous accompagner à toutes les étapes de votre projet.
Annonce proposée par un Agent Commercial Partenaire.
Mentions légales
Terrain proposé par un partenaire foncier selon disponibilités et autorisation de publicité au prix de 140 000 €. Hors droit d'enregistrement et frais de notaire. Maison proposée, avec un contrat de construction de maison individuelle, dans le cadre de la loi du 19/12/1990, au prix de 210 000 € (Hors branchements et raccordements, papiers peints, peintures, revêtement de sol dans les chambres, qui sont chiffrés dans les travaux qui restent à charge du client. Tarif modifiable sans préavis). Étiquette énergie : A. Différents modèles disponibles pour ce terrain. Assurances et garanties du constructeur comprises (RC professionnelle, décennale, dommage ouvrage).Agence Maisons France Confort de Magny-le-Hongre (77700)
- Téléphone :
- 01 84 80 92 96
- Adressse :
- 11 rue de Courtalin
77700 Magny-le-Hongre, France
