Maison neuve à
Avrillé (85440) Référence : JG2329197_2

Prix du projet : Maison avec Terrain

prix 209 655 €

  • 4 pièces
  • 3 chambres
  • Surface maison 81 m2

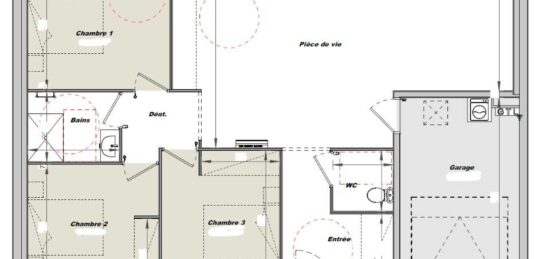
VENTE d'une maison T4 (81 m²) à Avrillé
IDÉALEMENT SITUÉE - MAISON 4 PIÈCES NEUVE
À vendre sur le littoral atlantique et à quelques kilomètres de La Roche-sur-Yon et de jard sur mer nous sommes ravis de vous proposer cette maison de 4 pièces de plain-pied de 81 m² idéalement située dans Avrillé (85440). Conçue de plain-pied, elle compte trois chambres, une cuisine avce son celllier, une salle de bains.et un garage
Le terrain de cette maison s'étend sur 308 m².viabilise et clos

La maison se trouve dans un quartier convoité. Il y a l'École Primaire Privée Saint Domnin et l'École Primaire Publique Jean de la Fontaine à moins de 10 minutes à pied. Il y a un accès à l'autoroute A87 à 18 km. On trouve un tennis, une boulangerie et deux épiceries dans les environs.
Elle est proposée à l'achat pour 209 655 €.
N'hésitez pas à prendre contact avec notre agence (GAUTHREAU Jessica : 07-49-20-70-93) pour plus d'informations sur le bien ou sur les démarches à suivre.
24 rue nationale 85750 angles

Annonce proposée par un Agent Commercial Partenaire.

Mentions légales

Terrain proposé par un partenaire foncier selon disponibilités et autorisation de publicité au prix de 52 000 €. Hors droit d'enregistrement et frais de notaire. Maison proposée, avec un contrat de construction de maison individuelle, dans le cadre de la loi du 19/12/1990, au prix de 157 655 € (Hors branchements et raccordements, papiers peints, peintures, revêtement de sol dans les chambres, qui sont chiffrés dans les travaux qui restent à charge du client. Tarif modifiable sans préavis). Étiquette énergie : A. Différents modèles disponibles pour ce terrain. Assurances et garanties du constructeur comprises (RC professionnelle, décennale, dommage ouvrage).

Contactez l'agence de Angles

02 51 27 43 52

    * Champs obligatoires

    Vos informations sont traitées par HEXAOM et transmises à un conseiller commercial qui vous contactera afin de répondre à votre demande. Les plans et images présentés sur notre site sont la propriété d’HEXAOM et ne peuvent pas être reproduits sans son accord. Pour retrouver notre politique de protection des données personnelles et exercer vos droits conformément à la « loi informatique et liberté » cliquez-ici.