Maison neuve à
Baincthun
(62360) Référence :
SH2257573_1
Prix du projet : Maison avec Terrain
prix 373 791 €
- 5 pièces
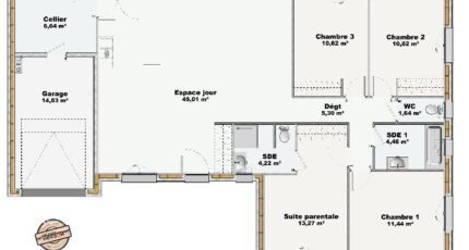
- 4 chambres
- Surface maison 113 m2
Baincthun : maison F5 (113 m²) en vente
EMPLACEMENT PRIVILÉGIÉ - MAISON 5 PIÈCES NEUVE
À vendre à 13 km de la Manche et à 31 km de Calais, découvrez cette maison de 5 pièces de plain-pied de 113 m² bénéficiant d'un emplacement privilégié dans Baincthun (62360).
Son intérieur est composé de quatre chambres, d'une cuisine et de deux salles de bains. La maison est neuve.
Le terrain du bien s'étend sur 1 700 m².
La maison est située dans un secteur convoité. L'École Primaire de la Pâturelle se trouve à moins de 10 minutes à pied. Niveau transports, il y a six gares à moins de 10 minutes en voiture. L'autoroute A16 et les nationales N42 et N1 sont accessibles à moins de 5 km. On trouve une boulangerie et une supérette dans les environs.
Elle est à vendre pour la somme de 373 791 €.
Contactez notre agence (HERBEZ Sabrina : o6-86-73-49-16) pour obtenir de plus amples renseignements sur la maison ou sur les modalités de vente.
Mentions légales
Terrain proposé par un partenaire foncier selon disponibilités et autorisation de publicité au prix de 128 980 €. Hors droit d'enregistrement et frais de notaire. Maison proposée, avec un contrat de construction de maison individuelle, dans le cadre de la loi du 19/12/1990, au prix de 244 811 € (Hors branchements et raccordements, papiers peints, peintures, revêtement de sol dans les chambres, qui sont chiffrés dans les travaux qui restent à charge du client. Tarif modifiable sans préavis). Étiquette énergie : A. Différents modèles disponibles pour ce terrain. Assurances et garanties du constructeur comprises (RC professionnelle, décennale, dommage ouvrage).Agence Maisons Les Naturelles de Boulogne-sur-Mer (62200)
- Téléphone :
- 03 21 92 26 26
- Adressse :
- 10 rue Felix Adam
62200 Boulogne-sur-Mer, France
