Maison neuve à
Baincthun
(62360) Référence :
SH2257573_4
Prix du projet : Maison avec Terrain
prix 443 103 €
- 6 pièces
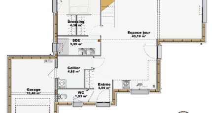
- 5 chambres
- Surface maison 114 m2
VENTE : maison de 6 pièces (114 m²) à Baincthun
EMPLACEMENT PRIVILÉGIÉ - MAISON 6 PIÈCES NEUVE
À vendre : à 13 km de la Manche et à quelques kilomètres de Calais, bénéficiant d'un emplacement privilégié dans Baincthun (62360), Maisons Les Naturelles Boulogne-sur-Mer vous présente cette maison de 6 pièces de 114 m². Elle inclut cinq chambres, une cuisine et deux salles de bains.
Le terrain de la maison s'étend sur 1 700 m².
Cette maison possède 2 niveaux. Elle est neuve.
La maison se trouve dans un quartier recherché. Il y a l'École Primaire de la Pâturelle à moins de 10 minutes à pied. Niveau transports, on trouve six gares à moins de 10 minutes en voiture. L'autoroute A16 et les nationales N42 et N1 sont accessibles à moins de 5 km. Il y a une boulangerie et une supérette dans les environs.
Elle est proposée à l'achat pour 443 103 €.
N'hésitez pas à prendre contact avec Sabrina HERBEZ (06-86-73-49-16) pour toute information sur la propriété. Maisons Les Naturelles Boulogne-sur-Mer vous accompagne dans tous vos projets immobiliers et dans toutes vos démarches.
Mentions légales
Terrain proposé par un partenaire foncier selon disponibilités et autorisation de publicité au prix de 128 980 €. Hors droit d'enregistrement et frais de notaire. Maison proposée, avec un contrat de construction de maison individuelle, dans le cadre de la loi du 19/12/1990, au prix de 314 123 € (Hors branchements et raccordements, papiers peints, peintures, revêtement de sol dans les chambres, qui sont chiffrés dans les travaux qui restent à charge du client. Tarif modifiable sans préavis). Étiquette énergie : A. Différents modèles disponibles pour ce terrain. Assurances et garanties du constructeur comprises (RC professionnelle, décennale, dommage ouvrage).Agence Maisons Les Naturelles de Boulogne-sur-Mer (62200)
- Téléphone :
- 03 21 92 26 26
- Adressse :
- 10 rue Felix Adam
62200 Boulogne-sur-Mer, France
