Maison neuve à
Baudre
(50000) Référence :
JS2419699_11
Prix du projet : Maison avec Terrain
prix 215 000 €
- 6 pièces
- 4 chambres
- Surface maison 91 m2
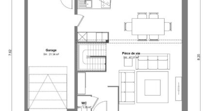
Maison de 6 pièces (91 m²) à vendre à Saint-Lô
Idéalement située - À Saint-Lô (50000), maison neuve en vente de 6 pièces, 2 niveaux, 91 m² de surface sur 306 m² de terrain. Elle inclut quatre chambres, une cuisine et une salle de bains.
Proche gares (Saint-Lô et Pont-Hébert), établissements scolaires, crèche, bowling, bibliothèque, commerces, boulangeries, supermarchés, supérettes et boucheries-charcuteries. Marché Place De Gaulle hebdomadaire. Nationale N174 à 2 km.
Cette maison de 6 pièces est à vendre pour la somme de 215 000 €.
Prenez contact avec notre agence (Emilie HUE : 06-29-81-46-66) pour tout renseignement sur la maison. Faites de vos projets immobiliers une réalité avec Maisons France Confort Bayeux.
Annonce proposée par un Agent Commercial Partenaire.
Mentions légales
Terrain proposé par un partenaire foncier selon disponibilités et autorisation de publicité au prix de 36 000 €. Hors droit d'enregistrement et frais de notaire. Terrain + Maison proposés au prix de 179 000 € (Hors branchements et raccordements, papiers peints, peintures, revêtement de sol dans les chambres. Tarif modifiable sans préavis). Etiquette énergie : A. Différents modèles disponibles pour ce terrain. Assurances et garanties du constructeur (RC professionnelle, décennale, dommage ouvrage, garantie de remboursement de l'acompte, livraison à prix et délai convenu) : https://www.maisons-france-confort.fr/mentions-legales/. HEXAOM Services est enregistré auprès de l'ORIAS en tant que Courtier en financement, Niveau 1, sous le numéro 14001345.Agence Maisons France Confort de Bayeux (14400)
- Téléphone :
- 02 31 51 20 91
- Adressse :
- 2, rue Saint Loup
14400 Bayeux, France
