Maison neuve à
Baulne
(91590) Référence :
AD2352318_2
Prix du projet : Maison avec Terrain
prix 260 986 €
- 5 pièces
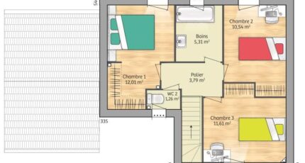
- 3 chambres
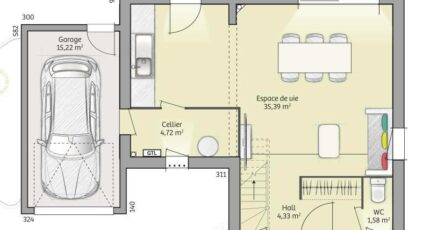
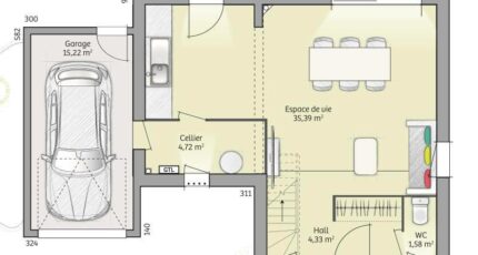
- Surface maison 90 m2
Maison F5 (90 m²) en vente à Baulne
MAISON 5 PIÈCES NEUVE
À proximité du RER C (station Bouray, 30 min de Paris), ayez le coup de coeur pour à vendre à Baulne (91590), cette maison de 5 pièces de 90 m². Son intérieur inclut trois chambres, une cuisine et une salle de bains.
Le terrain de cette maison s'étend sur 312 m².
Cette maison possède 2 niveaux. Elle est neuve.
Il y a l'École Primaire Henri Gwozdz à moins de 10 minutes à pied. Niveau transports en commun, on trouve les lignes de RER D et C ainsi que six gares à moins de 10 minutes en voiture. On trouve une boulangerie, un supermarché, trois commerces, une boucherie-charcuterie et une épicerie à quelques minutes de la maison.
Elle est à vendre pour la somme de 260 986 €.
Contactez notre agence (DELOHEN Anne : 06-30-93-26-67) pour toute question sur la maison ou sur les modalités de vente. Maisons France Confort Nemours est là pour vous accompagner dans tous vos projets immobiliers.
Annonce proposée par un Agent Commercial Partenaire.
Mentions légales
Terrain proposé par un partenaire foncier selon disponibilités et autorisation de publicité au prix de 85 000 €. Hors droit d'enregistrement et frais de notaire. Maison proposée, avec un contrat de construction de maison individuelle, dans le cadre de la loi du 19/12/1990, au prix de 175 986 € (Hors branchements et raccordements, papiers peints, peintures, revêtement de sol dans les chambres, qui sont chiffrés dans les travaux qui restent à charge du client. Tarif modifiable sans préavis). Étiquette énergie : A. Différents modèles disponibles pour ce terrain. Assurances et garanties du constructeur comprises (RC professionnelle, décennale, dommage ouvrage).Agence Maisons France Confort de Nemours (77140)
- Téléphone :
- 01 64 28 58 32
- Adressse :
- 16 Avenue Carnot
77140 Nemours, France
