Maison neuve à
Beauvais
(60000) Référence :
FBbonlier95_21
Prix du projet : Maison avec Terrain
prix 246 000 €
- 6 pièces
- 4 chambres
- Surface maison 91 m2
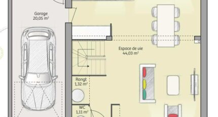
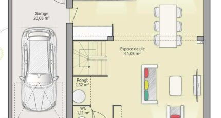
VENTE d'une maison de 6 pièces (91 m²) à Bonlier
IDÉALEMENT SITUÉE - MAISON 6 PIÈCES NEUVE
En vente à 6 km de Beauvais, nous vous présentons cette maison de 6 pièces de 91 m² idéalement située dans Bonlier (60510).
Cette maison possède 2 niveaux. Elle comporte quatre chambres, une cuisine et une salle de bains. La maison est neuve.
Le terrain du bien s'étend sur 1 687 m².
Cette maison se trouve dans un secteur recherché. Une école élémentaire y est implantée. Niveau transports, il y a deux gares (Beauvais et Rochy-Condé) à moins de 10 minutes en voiture. L'autoroute A16 et la nationale N31 sont accessibles à moins de 5 km. On trouve une bibliothèque et une poissonnerie à proximité de la maison.
Elle est à vendre pour la somme de 246 000 €.
Contactez notre agence (Fabrice BONELLO : 06-09-50-50-09) pour obtenir de plus amples informations sur la maison, sur les modalités de vente ou sur les démarches à suivre.
Mentions légales
Terrain proposé par un partenaire foncier selon disponibilités et autorisation de publicité au prix de 85 000 €. Hors droit d'enregistrement et frais de notaire. Terrain + Maison proposés au prix de 246 000 € (Hors branchements et raccordements, papiers peints, peintures, revêtement de sol dans les chambres. Tarif modifiable sans préavis). Etiquette énergie : A. Différents modèles disponibles pour ce terrain. Assurances et garanties du constructeur (RC professionnelle, décennale, dommage ouvrage, garantie de remboursement de l'acompte, livraison à prix et délai convenu) : https://www.maisons-france-confort.fr/mentions-legales/. HEXAOM Services est enregistré auprès de l'ORIAS en tant que Courtier en financement, Niveau 1, sous le numéro 14001345.Agence Maisons France Confort de Beauvais (60000)
- Téléphone :
- 03 44 04 40 04
- Adressse :
- 42 rue Pierre Jacoby
60000 Beauvais, France
