Maison neuve à
Belin-Béliet (33830) Référence : RT2355234_13

Prix du projet : Maison avec Terrain

prix 230 430 €

  • 3 pièces
  • 2 chambres
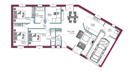
  • Surface maison 80 m2

Maison F3 (80 m²) à vendre à Belin-Béliet
EMPLACEMENT PRIVILÉGIÉ - MAISON 3 PIÈCES NEUVE
En vente à 34 km de la côte atlantique, ayez le coup de coeur pour cette maison de 3 pièces de plain-pied de 80 m², bénéficiant d'un emplacement privilégié dans Belin-Béliet (33830). Son intérieur offre deux chambres, une cuisine et une salle de bains.
Le terrain de cette maison s'étend sur 520 m².
La maison est neuve.
La maison est située dans un secteur recherché. Il y a des établissements scolaires primaires à moins de 10 minutes à pied et, comme l'École Primaire Bertrine. Il y a un accès à l'autoroute A63 à 6 km. On trouve une bibliothèque, une boulangerie, deux commerces, un bureau de poste et une épicerie à quelques minutes.
Elle est à vendre pour la somme de 230 430 €.
Contactez notre agence (Romain TEXIER : O6-24-80-24-38) pour toute information sur le bien ou sur les modalités de vente. Maisons de la Côte Atlantique Le Barp vous accompagne dans toutes vos démarches et dans tous vos projets immobiliers.

Contactez l'agence de Le Barp

05 35 37 00 44

    * Champs obligatoires

    Vos informations sont traitées par HEXAOM et transmises à un conseiller commercial qui vous contactera afin de répondre à votre demande. Les plans et images présentés sur notre site sont la propriété d’HEXAOM et ne peuvent pas être reproduits sans son accord. Pour retrouver notre politique de protection des données personnelles et exercer vos droits conformément à la « loi informatique et liberté » cliquez-ici.