Maison neuve à
Bénesse-Maremne
(40230) Référence :
AD2447648_3
Prix du projet : Maison avec Terrain
prix 555 000 €
- 5 pièces
- 4 chambres
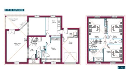
- Surface maison 130 m2
Amélie DABA des Maisons MCA à Capbreton, vous propose d'adapter le modèle Arpège, sur ce joli terrain d'environ 610m², située dans un quartier calme, sur la commune de Benesse Maremne, à 15 minutes de Bayonne.
Cette grande maison de 131 m² est idéale pour accueillir une famille. Composée de 4 chambres (3 à l'étage avec une salle de bain et une suite parentale au rez-de-chaussée), d'un séjour avec terrasse couverte, d'une cuisine séparée avec son cellier et le garage attenant.
Cette maison possède plus d'un atout pour vous séduire, et reste entièrement personnalisable pour s'adapter à vos besoins.
Le prix inclus les frais de notaire et de raccordement.
Contactez vite votre conseillère Amélie DABA, à l'agence MCA de Capbreton, afin qu'elle vous guide dans les démarches et vous accompagne dans ce projet de construction personnalisé.
Mentions légales
Idée de réalisation en modèle prêt à décorer sur l'un de nos terrains partenaires, sous réserve de disponibilités. Voir détails en agence.Agence Maisons de la Côte Atlantique de Capbreton (40130)
- Téléphone :
- 05 58 74 97 20
- Adressse :
- Place de la Gare
40130 Capbreton, France
