Maison neuve à
Biscarrosse (40600) Référence : AD2367114_1

Prix du projet : Maison avec Terrain

prix 425 500 €

  • 5 pièces
  • 4 chambres
  • Surface maison 115 m2

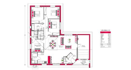
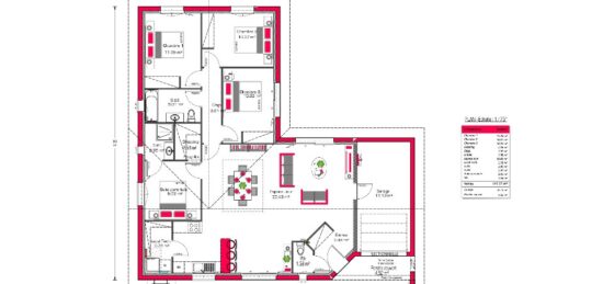
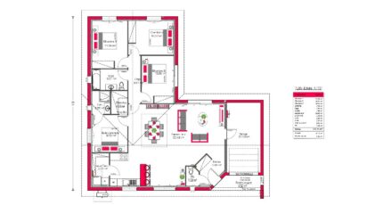
Maison neuve - Modèle MAE de 115 m² 4 chambres + garage

Découvrez le modèle MAE, une maison moderne, spacieuse et parfaitement pensée pour le confort au quotidien. Avec ses 115 m², elle offre des volumes généreux et une organisation idéale pour la vie de famille.

La maison se compose d'un bel espace de vie lumineux avec cuisine ouverte, d'un coin nuit comprenant 4 chambres confortables, d'une salle de bain contemporaine, ainsi que d'un garage attenant pour plus de praticité.

✨ Ses atouts :

Construction conforme à la RE2020

Plan optimisé, personnalisable selon vos besoins

Matériaux et prestations de qualité

Maison idéale pour une famille ou pour un premier projet de construction réussi

📍 Implantation possible sur un terrain soigneusement sélectionné à Biscarrosse (ou autre commune selon votre choix).
Profitez d'un environnement calme, verdoyant, à deux pas des plages et des grands espaces du littoral landais.

📞 Contactez Angélique Dangoumau - 06 89 19 34 27
pour une étude personnalisée de votre projet maison + terrain.

Mentions légales

Terrain proposé par un partenaire foncier selon disponibilité dans le cadre d’un projet de construction avec Couleur Villas. Les descriptions, photographies, surfaces et prix illustrant l’annonce sont fournies à titre indicatif et ne sont pas contractuels. Non soumis au DPE. Différents modèles disponibles.

Contactez l'agence de Biscarrosse

05 58 08 20 04

    * Champs obligatoires

    Vos informations sont traitées par HEXAOM et transmises à un conseiller commercial qui vous contactera afin de répondre à votre demande. Les plans et images présentés sur notre site sont la propriété d’HEXAOM et ne peuvent pas être reproduits sans son accord. Pour retrouver notre politique de protection des données personnelles et exercer vos droits conformément à la « loi informatique et liberté » cliquez-ici.