Maison neuve à
Biscarrosse (40600) Référence : CV2447298_2

Prix du projet : Maison avec Terrain

prix 306 500 €

  • 4 pièces
  • 3 chambres
  • Surface maison 84 m2

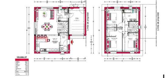
Carine VIENAT des Maisons MCA à Biscarrosse, vous propose d'adapter le modèle Tulipe, sur un terrain de 553m2, idéalement situé au calme, sur la commune de Biscarrosse.

Cette maison de plain pied, dispose d'un hall d'entrée avec placard et wc séparés; une belle pièce de vie avec cuisine ouverte et cellier attenant, pour une surface totale d'environ 37m2. Le coin nuit est composé de 3 chambres avec placards, et une salle de bains.

Vous serez séduits par ses volumes optimisés et sa fonctionnalité.

Le prix affiché comprend le terrain, les frais de notaire, les frais annexes (raccordements, bornage), et cette maison livrée prête à décorer.

N'hésitez pas à contacter Carine VIENAT à l'agence MCA de Biscarrosse, afin qu'elle vous guide dans les démarches, et vous accompagne dans ce projet de construction personnalisé.

Mentions légales

Idée de réalisation en modèle prêt à décorer sur l'un de nos terrains partenaires, sous réserve de disponibilités. Voir détails en agence.

Contactez l'agence de Biscarrosse

05 35 37 19 66

    * Champs obligatoires

    Vos informations sont traitées par HEXAOM et transmises à un conseiller commercial qui vous contactera afin de répondre à votre demande. Les plans et images présentés sur notre site sont la propriété d’HEXAOM et ne peuvent pas être reproduits sans son accord. Pour retrouver notre politique de protection des données personnelles et exercer vos droits conformément à la « loi informatique et liberté » cliquez-ici.