Maison neuve à
Blaignan
(33340) Référence :
AB2356293_2
Prix du projet : Maison avec Terrain
prix 274 230 €
- 6 pièces
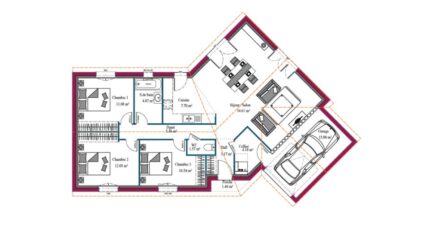
- 3 chambres
- Surface maison 113 m2
Projet de construction sur un terrain de 866 m² en Première Ligne sur la commune de Blaignan -Secteur Prignac
Situé sur la commune de Prignac, découvrez ce beau terrain de 866 m², idéalement placé en première ligne dans un chemin paisible, au coeur d'un secteur calme et agréable.
Entièrement viabilisé, il dispose déjà des raccordements essentiels (eau, électricité).
Un assainissement individuel est à prévoir
Sur ce terrain nous vous proposons d'y implanter le modèle Floride de 113 m² qui comprend une belle pièce de vie lumineuse, trois chambres, un bureau et une salle d'eau.
Tous nos plans sont personnalisables selon vos envies et besoins
Le prix de 274 230 € comprend le terrain, les frais de notaire, toute la partie terrassement, ce modèle de maison en prêt à décorer (pas de revêtements sur les murs et ni dans les chambres et sans cuisine
Pour plus de renseignements , n'hésitez pas à prendre contact avec l'agence Maisons MCA de Lesparre, constructeur de maisons individuelles au O5 56 41 08 21
Agence Maisons de la Côte Atlantique de Lesparre-Médoc (33340)
- Téléphone :
- 05 56 41 08 21
- Adressse :
- 10A, Cours Georges Mandel
33340 Lesparre-Médoc, France
