Maison neuve à
Bois-l'Évêque (76160) Référence : SEMA9023_7

Prix du projet : Maison avec Terrain

prix 274 000 €

  • 9 pièces
  • 5 chambres
  • Surface maison 124 m2

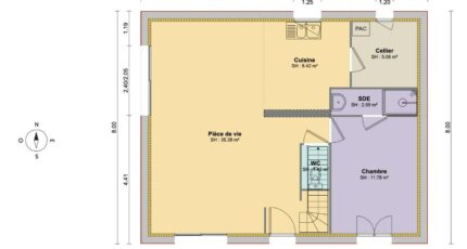
Bois-l'Évêque : maison T9 (124 m²) à vendre
MAISON 9 PIÈCES NEUVE - PROCHE DE ROUEN
En vente : située à quelques kilomètres de Rouen, nous vous proposons cette maison de 9 pièces de 124 m² à Bois-l'Évêque (76160). Elle offre cinq chambres, une cuisine et trois salles de bains.
Le terrain de la propriété s'étend sur 600 m².
Cette maison compte 2 niveaux. Elle est neuve.
Il y a une école élémentaire dans le quartier. Niveau transports en commun, on trouve deux gares (Saint-Martin-du-Vivier et Morgny-la-Pommeraye) à moins de 10 minutes en voiture. L'autoroute A28 et la nationale N28 sont accessibles à moins de 10 km. Il y a un commerce à proximité du logement.
Son prix de vente est de 274 000 €.
N'hésitez pas à prendre contact avec notre agence (Sébastien MASSON : 06-23-38-14-17) pour toute question sur cette maison. Maisons Balency Boos vous accompagne dans tous vos projets immobiliers et à toutes les étapes de l'achat.

Annonce proposée par un Agent Commercial Partenaire.

Mentions légales

Terrain proposé par un partenaire foncier selon disponibilités et autorisation de publicité au prix de 80 000 €. Hors droit d'enregistrement et frais de notaire. Maison proposée, avec un contrat de construction de maison individuelle, dans le cadre de la loi du 19/12/1990, au prix de 194 000 € (Hors branchements et raccordements, papiers peints, peintures, revêtement de sol dans les chambres, qui sont chiffrés dans les travaux qui restent à charge du client. Tarif modifiable sans préavis). Étiquette énergie : A. Différents modèles disponibles pour ce terrain. Assurances et garanties du constructeur comprises (RC professionnelle, décennale, dommage ouvrage).

Contactez l'agence de Boos

02 35 80 66 66

    * Champs obligatoires

    Vos informations sont traitées par HEXAOM et transmises à un conseiller commercial qui vous contactera afin de répondre à votre demande. Les plans et images présentés sur notre site sont la propriété d’HEXAOM et ne peuvent pas être reproduits sans son accord. Pour retrouver notre politique de protection des données personnelles et exercer vos droits conformément à la « loi informatique et liberté » cliquez-ici.