Maison neuve à
Boissise-le-Roi
(77310) Référence :
CY2467929_1
Prix du projet : Maison avec Terrain
prix 308 000 €
- 5 pièces
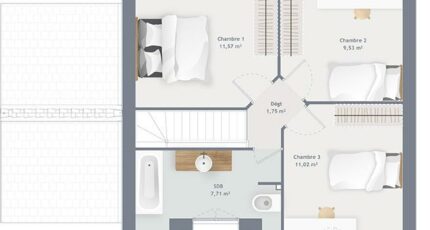
- 3 chambres
- Surface maison 80 m2
VENTE d'une maison de 5 pièces (80 m²) à Boissise-le-Roi
IDÉALEMENT SITUÉE - MAISON 5 PIÈCES NEUVE
En vente : située à 16 km d'Évry-Courcouronnes, découvrez cette maison de 5 pièces de 80 m² et de 312 m² de terrain idéalement située dans Boissise-le-Roi (77310). Son intérieur propose trois chambres, une cuisine et une salle de bains.
Cette maison possède 2 niveaux. Elle est neuve.
La maison est située dans un secteur convoité. On trouve l'École Élémentaire André Malraux et l'École Maternelle André Malraux à moins de 10 minutes à pied. Niveau transports en commun, il y a la station de RER Boissise-Le-Roi (ligne D) ainsi que la gare Boissise-le-Roi juste à côté. On trouve un tennis, trois commerces, une boucherie-charcuterie et une épicerie dans les environs.
Elle est à vendre pour la somme de 308 000 €.
N'hésitez pas à prendre contact avec notre agence (Cedric YAHIAOUI : 06-66-57-00-63) pour tout renseignement sur la maison.
Annonce proposée par un Agent Commercial Partenaire.
Mentions légales
Terrain proposé par un partenaire foncier selon disponibilités et autorisation de publicité au prix de 118 000 €. Hors droit d'enregistrement et frais de notaire. Terrain + Maison proposés au prix de 308 000 € (Hors branchements et raccordements, papiers peints, peintures, revêtement de sol dans les chambres. Tarif modifiable sans préavis). Etiquette énergie : A. Différents modèles disponibles pour ce terrain. Assurances et garanties du constructeur (RC professionnelle, décennale, dommage ouvrage, garantie de remboursement de l'acompte, livraison à prix et délai convenu) : https://www.maisons-france-confort.fr/mentions-legales/. HEXAOM Services est enregistré auprès de l'ORIAS en tant que Courtier en financement, Niveau 1, sous le numéro 14001345.Agence Maisons France Confort de Mareuil-lès-Meaux (77100)
- Téléphone :
- 01 60 09 28 30
- Adressse :
- Domexpo Est Village La Hayette
77100 Mareuil-lès-Meaux, France
