Maison neuve à
Bouconvillers
(60240) Référence :
AL2356236_1
Prix du projet : Maison avec Terrain
prix 230 200 €
- 5 pièces
- 4 chambres
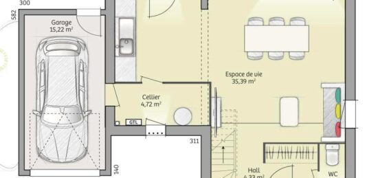
- Surface maison 101 m2
VENTE : maison F5 (101 m²) à Bouconvillers
MAISON 5 PIÈCES NEUVE - PROCHE DE CERGY
À vendre : à côté de la gare de Chars (Paris à 55 min avec le Transilien J), ayez le coup de coeur pour à Bouconvillers (60240), cette maison de 5 pièces de plain-pied de 101 m² et de 500 m² de terrain.
Conçue de plain-pied, elle est composée de quatre chambres, d'une cuisine et d'une salle de bains. La maison est neuve.
Niveau transports en commun, on trouve six gares à moins de 10 minutes en voiture. Les autoroutes A16 et A15 et la nationale N14 sont accessibles à moins de 20 km et Cergy est située à 18 km. Il y a un tennis et un commerce à proximité de la maison.
Elle est à vendre pour la somme de 230 200 €.
Contactez notre agence Maisons France Confort Boos 02 35 80 66 62 / 06 15 24 16 98 pour tout renseignement sur la maison.
Annonce proposée par un Agent Commercial Partenaire.
Mentions légales
Terrain proposé par un partenaire foncier selon disponibilités et autorisation de publicité au prix de 79 000 €. Hors droit d'enregistrement et frais de notaire. Maison proposée, avec un contrat de construction de maison individuelle, dans le cadre de la loi du 19/12/1990, au prix de 151 200 € (Hors branchements et raccordements, papiers peints, peintures, revêtement de sol dans les chambres, qui sont chiffrés dans les travaux qui restent à charge du client. Tarif modifiable sans préavis). Étiquette énergie : A. Différents modèles disponibles pour ce terrain. Assurances et garanties du constructeur comprises (RC professionnelle, décennale, dommage ouvrage).Agence Maisons France Confort de Boos (76520)
- Téléphone :
- 02 35 80 66 62
- Adressse :
- 68 rue de la Forge Féret
76520 Boos, France
