Maison neuve à
Bougue
(40090) Référence :
JPV2447562_2
Prix du projet : Maison avec Terrain
prix 206 600 €
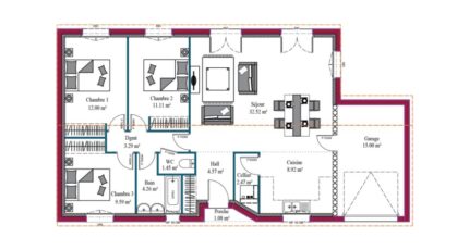
- 4 pièces
- 3 chambres
- Surface maison 90 m2
Jean Philippe VILLENAVE O6.43.57.37.78 des Maisons MCA, vous propose le modèle Optima, implanté sur cette agréable parcelle de 500m², sur la commune de Bougue, à quelques minutes de Mont de Marsan.
Cette maison possède un grand salon-séjour tourné vers le jardin, une cuisine ouverte avec son cellier attenant, ce qui offre un espace jour de plus de 41m2. Le coté nuit est composé de 3 chambres avec placards, une salle de bains et wc séparés. Un garage communiquant de 15 m2 vient compléter ce bel ensemble.
Ce modèle saura vous plaire grâce à son agencement idéalement pensé pour votre confort de vie, et l'optimisation des espaces.
Ce plan reste personnalisable afin de s'adapter à votre mode de vie.
Ne laissez pas passer cette rare opportunité sur le secteur, contactez vite votre conseiller Jean Philippe VILLENAVE au O6.43.57.37.78, afin qu'il vous guide dans les démarches et vous accompagne dans ce projet de construction personnalisé.
*prix frais de notaire inclus, maison prête à décorer, hors frais de raccordements.
Mentions légales
Idée de réalisation en modèle prêt à décorer sur l'un de nos terrains partenaires, sous réserve de disponibilités. Voir détails en agence.Agence Maisons de la Côte Atlantique de Mont-de-Marsan (40000)
- Téléphone :
- 05 35 37 90 02
- Adressse :
- 2 rue de la ferme de Beillet
40000 Mont-de-Marsan, France
