Maison neuve à
Boullay-les-Troux
(91470) Référence :
AD2355772_2
Prix du projet : Maison avec Terrain
prix 403 377 €
- 6 pièces
- 4 chambres
- Surface maison 105 m2
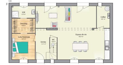
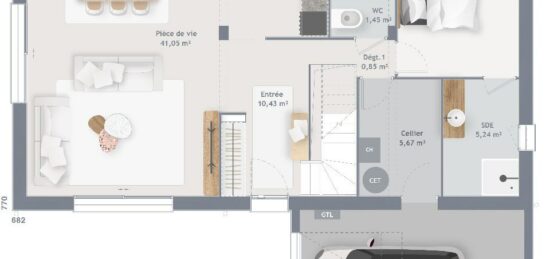
VENTE : maison F6 (105 m²) à Boullay-les-Troux
MAISON 6 PIÈCES NEUVE
À côté de la station Saint-Rémy-lès-Chevreuse du RER B (35 min de Paris), découvrez cette maison de 6 pièces de 105 m² et de 465 m² de terrain en vente à Boullay-les-Troux (91470). Son intérieur offre quatre chambres, une cuisine et deux salles de bains.
Il s'agit d'une maison de 2 niveaux. Elle est neuve.
Il y a l'École Primaire Jean-Theodore Lepeintre à moins de 10 minutes à pied. Niveau transports, on trouve la ligne de RER B (Saint-Rémy-Lès-Chevreuse) à moins de 10 minutes en voiture. On trouve une bibliothèque dans les environs.
Son prix de vente est de 403 377 €.
N'hésitez pas à prendre contact avec notre agence (DELOHEN Anne : 06-30-93-26-67) pour plus d'informations sur cette maison, sur les démarches à suivre ou sur les modalités de vente. Maisons France Confort Nemours est là pour vous accompagner à toutes les étapes de votre projet.
Annonce proposée par un Agent Commercial Partenaire.
Mentions légales
Terrain proposé par un partenaire foncier selon disponibilités et autorisation de publicité au prix de 205 000 €. Hors droit d'enregistrement et frais de notaire. Terrain + Maison proposés au prix de 198 377 € (Hors branchements et raccordements, papiers peints, peintures, revêtement de sol dans les chambres. Tarif modifiable sans préavis). Etiquette énergie : A. Différents modèles disponibles pour ce terrain. Assurances et garanties du constructeur (RC professionnelle, décennale, dommage ouvrage, garantie de remboursement de l'acompte, livraison à prix et délai convenu) : https://www.maisons-france-confort.fr/mentions-legales/. HEXAOM Services est enregistré auprès de l'ORIAS en tant que Courtier en financement, Niveau 1, sous le numéro 14001345.Agence Maisons France Confort de Nemours (77140)
- Téléphone :
- 01 64 28 58 32
- Adressse :
- 16 Avenue Carnot
77140 Nemours, France
