Maison neuve à
Bretteville-l'Orgueilleuse
(14740) Référence :
JS2479533_11
Prix du projet : Maison avec Terrain
prix 264 120 €
- 6 pièces
- 4 chambres
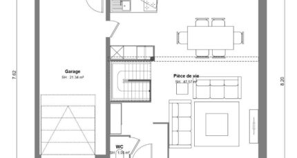
- Surface maison 91 m2
Bretteville-l'Orgueilleuse : maison de 6 pièces (91 m²) à vendre
IDÉALEMENT SITUÉE - MAISON 6 PIÈCES NEUVE
En vente : à 11 km de Caen, Maisons France Confort Bayeux vous présente cette maison de 6 pièces de 91 m² et de 413 m² de terrain idéalement située dans Bretteville-l'Orgueilleuse (14740).
Cette maison compte 2 niveaux. Son intérieur propose quatre chambres, une cuisine et une salle de bains. Cette maison est neuve.
La maison se trouve dans un secteur recherché. Il y a l'École Maternelle les Lilas et l'École Élémentaire les Coquelicots à moins de 10 minutes à pied. Côté transports, on trouve la gare Bretteville-Norrey à quelques pas du bien. On trouve un accès à la nationale N13 à 1 km. Il y a un tennis, une bibliothèque, quatre commerces, une boucherie-charcuterie et un bureau de poste à quelques minutes à peine.
Elle est proposée à l'achat pour 264 120 €.
Contactez notre agence (HUE Emilie : 06-29-81-46-66) pour obtenir de plus amples informations sur la maison ou sur les démarches à suivre. Maisons France Confort Bayeux est là pour vous accompagner à toutes les étapes de l'achat.
Annonce proposée par un Agent Commercial Partenaire.
Mentions légales
Terrain proposé par un partenaire foncier selon disponibilités et autorisation de publicité au prix de 99 120 €. Hors droit d'enregistrement et frais de notaire. Terrain + Maison proposés au prix de 264 120 € (Hors branchements et raccordements, papiers peints, peintures, revêtement de sol dans les chambres. Tarif modifiable sans préavis). Etiquette énergie : A. Différents modèles disponibles pour ce terrain. Assurances et garanties du constructeur (RC professionnelle, décennale, dommage ouvrage, garantie de remboursement de l'acompte, livraison à prix et délai convenu) : https://www.maisons-france-confort.fr/mentions-legales/. HEXAOM Services est enregistré auprès de l'ORIAS en tant que Courtier en financement, Niveau 1, sous le numéro 14001345.Agence Maisons France Confort de Bayeux (14400)
- Téléphone :
- 02 31 51 20 91
- Adressse :
- 2, rue Saint Loup
14400 Bayeux, France
