Maison neuve à
Briatexte
(81390) Référence :
JT2275394_5
Prix du projet : Maison avec Terrain
prix 303 630 €
- 5 pièces
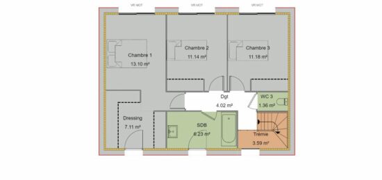
- 4 chambres
- Surface maison 104 m2
Modèle Terra 104 - Villa moderne en ossature bois
Maisons France Confort Albi, spécialiste de la construction traditionnelle et à ossature bois, vous présente le modèle Terra, une villa contemporaine de 104 m² qui allie design moderne, luminosité naturelle et fonctionnalité.
🏡 Espace jour
Dès l'entrée, vous serez séduit par une vaste pièce de vie de 46 m², traversante et baignée de lumière grâce à deux baies vitrées coulissantes et une fenêtre côté cuisine, offrant une belle ouverture sur l'extérieur et une ambiance chaleureuse.
Un cellier de 5 m², directement relié à la cuisine, permet un accès fluide au garage intégré de 14 m². Un WC indépendant complète cet espace.
🛏️ Espace nuit
Côté nuit, la villa propose :
Quatre chambres lumineuses de 10,44 m² à 11,80 m²
Une salle de bains équipée d'une vasque, d'une baignoire et d'un WC
Pensée pour répondre aux attentes d'une famille moderne, la villa Terra séduit par son agencement optimisé, son esthétique contemporaine et ses excellentes performances énergétiques.
📞 Coup de coeur garanti !
Ne tardez plus à concrétiser votre projet !
Contactez Maisons France Confort Albi au 05 63 43 56 40 pour plus d'informations.
Frais de notaire et frais annexes non inclus dans le prix affiché.
Annonce proposée par un Agent Commercial Partenaire.
Mentions légales
Terrain proposé par un partenaire foncier selon disponibilités et autorisation de publicité au prix de 100 000 €. Hors droit d'enregistrement et frais de notaire. Maison proposée, avec un contrat de construction de maison individuelle, dans le cadre de la loi du 19/12/1990, au prix de 203 630 € (Hors branchements et raccordements, papiers peints, peintures, revêtement de sol dans les chambres, qui sont chiffrés dans les travaux qui restent à charge du client. Tarif modifiable sans préavis). Étiquette énergie : A. Différents modèles disponibles pour ce terrain. Assurances et garanties du constructeur comprises (RC professionnelle, décennale, dommage ouvrage).Agence Maisons France Confort de Albi (81000)
- Téléphone :
- 05 63 43 56 40
- Adressse :
- 187 avenue Colonel Teyssier
81000 Albi, France
