Maison neuve à
Brissac-Quincé (49320) Référence : RS2329317_2

Prix du projet : Maison avec Terrain

prix 257 800 €

  • 5 pièces
  • 3 chambres
  • Surface maison 85 m2

VENTE d'une maison de 5 pièces (85 m²) à Brissac-Quincé
PROCHE D'ANGERS - MAISON 5 PIÈCES NEUVE
En vente à 18 km d'Angers, nous vous présentons cette maison de 5 pièces de 85 m² à Brissac-Quincé (49320).
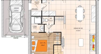
Cette maison comporte 2 niveaux. Elle comporte trois chambres, une cuisine et deux salles de bains. La maison est neuve.
Le terrain de la propriété s'étend sur 379 m².
Il y a cinq établissements scolaires à moins de 10 minutes à pied. Côté transports, on trouve la gare La Bohalle à moins de 10 minutes en voiture. Les autoroutes A87N et A87 sont accessibles à moins de 8 km. Il y a un bassin de natation, un tennis, une boulangerie, quatre commerces, un bureau de poste, trois épiceries et une boucherie-charcuterie dans les environs. Le marché Place Clémenceau anime le quartier chaque jeudi matin.
Son prix de vente est de 257 800 €.
Contactez Roman SALAS (02-41-77-17-17) pour obtenir de plus amples informations sur la maison. Concrétisez vos projets immobiliers avec Maisons Bernard Jambert Angers.

Mentions légales

Terrain proposé par un partenaire foncier selon disponibilités et autorisation de publicité au prix de 62 500 €. Hors droit d'enregistrement et frais de notaire. Maison proposée, avec un contrat de construction de maison individuelle, dans le cadre de la loi du 19/12/1990, au prix de 195 300 € (Hors branchements et raccordements, papiers peints, peintures, revêtement de sol dans les chambres, qui sont chiffrés dans les travaux qui restent à charge du client. Tarif modifiable sans préavis). Étiquette énergie : A. Différents modèles disponibles pour ce terrain. Assurances et garanties du constructeur comprises (RC professionnelle, décennale, dommage ouvrage).

Contactez l'agence de Angers

02 41 77 17 17

    * Champs obligatoires

    Vos informations sont traitées par HEXAOM et transmises à un conseiller commercial qui vous contactera afin de répondre à votre demande. Les plans et images présentés sur notre site sont la propriété d’HEXAOM et ne peuvent pas être reproduits sans son accord. Pour retrouver notre politique de protection des données personnelles et exercer vos droits conformément à la « loi informatique et liberté » cliquez-ici.