Maison neuve à
Bueil
(27730) Référence :
MD2280437_4
Prix du projet : Maison avec Terrain
prix 314 900 €
- 6 pièces
- 4 chambres
- Surface maison 100 m2
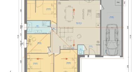
VENTE : maison de 6 pièces (100 m²) à Bueil
IDÉALEMENT SITUÉE - MAISON 6 PIÈCES NEUVE
En vente à deux pas d'Évreux, votre agence Maisons France Confort Vernon est ravie de vous présenter cette maison de 6 pièces de plain-pied de 100 m² idéalement située dans Bueil (27730).
Son intérieur est composé de quatre chambres, d'une cuisine et d'une salle de bains. Cette maison est neuve.
Le terrain du bien s'étend sur 1 260 m².
La propriété se situe dans un secteur attractif. On trouve l'École Maternelle Jérôme Bossuyt et l'École Primaire Paul Delabre à moins de 10 minutes à pied. Niveau transports, il y a la gare Bueil juste à côté. On trouve un accès à la nationale N13 à 9 km. On trouve deux commerces, une boulangerie et un supermarché à proximité.
Elle est proposée à l'achat pour 314 900 €.
Contactez notre agence (DEBART Murielle : 06-29-34-36-28) pour tout renseignement sur la maison. Maisons France Confort Vernon est là pour vous accompagner dans toutes vos démarches.
Mentions légales
Terrain proposé par un partenaire foncier selon disponibilités et autorisation de publicité au prix de 134 900 €. Hors droit d'enregistrement et frais de notaire. Maison proposée, avec un contrat de construction de maison individuelle, dans le cadre de la loi du 19/12/1990, au prix de 180 000 € (Hors branchements et raccordements, papiers peints, peintures, revêtement de sol dans les chambres, qui sont chiffrés dans les travaux qui restent à charge du client. Tarif modifiable sans préavis). Étiquette énergie : A. Différents modèles disponibles pour ce terrain. Assurances et garanties du constructeur comprises (RC professionnelle, décennale, dommage ouvrage).Agence Maisons France Confort de Vernon (27200)
- Téléphone :
- 02 32 51 45 05
- Adressse :
- 38 rue Carnot
27200 Vernon, France
