Maison neuve à
Castelmaurou
(31180) Référence :
DB2293760_2
Prix du projet : Maison avec Terrain
prix 335 000 €
- 5 pièces
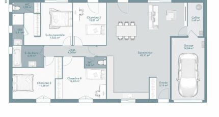
- 4 chambres
- Surface maison 113 m2
"Votre agence Maisons France Confort d'Aucamville vous propose ce beau projet maison + terrain sur la commune de CASTELMAUROU.
Avec sa façade sobre et élégante, cette maison est conçue de manière ingénieuse et fonctionnelle, les volumes sont optimisés pour que chaque membre de la famille puisse avoir son propre cocon. Le grand volume de l'espace de vie dessert la cuisine, le salon et la salle à manger, on retrouve également un cellier et un garage pour la zone jour. Du côté nuit, ce plan vous propose 3 chambres, une salle de bains et une chambre parentale avec salle d'eau et dressing privés en option.
prix:335000€ HF
Pour toutes informations, contactez l'agence MAISONS FRANCE CONFORT d'Aucamville au 05.34.43.84.38."
Annonce proposée par un Agent Commercial Partenaire.
Mentions légales
Terrain proposé par un partenaire foncier selon disponibilités et autorisation de publicité au prix de 159 000 €. Hors droit d'enregistrement et frais de notaire. Maison proposée, avec un contrat de construction de maison individuelle, dans le cadre de la loi du 19/12/1990, au prix de 176 000 € (Hors branchements et raccordements, papiers peints, peintures, revêtement de sol dans les chambres, qui sont chiffrés dans les travaux qui restent à charge du client. Tarif modifiable sans préavis). Étiquette énergie : A. Différents modèles disponibles pour ce terrain. Assurances et garanties du constructeur comprises (RC professionnelle, décennale, dommage ouvrage).Agence Maisons France Confort de Aucamville (31140)
- Téléphone :
- 05 34 43 84 38
- Adressse :
- 17 chemin Bellegarrigues
31140 Aucamville, France
