Maison neuve à
Cepoy (45120) Référence : CY2430610_1

Prix du projet : Maison avec Terrain

prix 219 000 €

  • 5 pièces
  • 3 chambres
  • Surface maison 90 m2

VENTE d'une maison de 5 pièces (90 m²) à Cepoy
MAISON 5 PIÈCES NEUVE
À deux pas de la gare de Montargis (Paris à 1 h par le Transilien R), notre agence Maisons France Confort Magny-le-Hongre est heureuse de vous proposer cette maison de 5 pièces de 90 m² à vendre à Cepoy (45120).
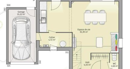
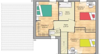
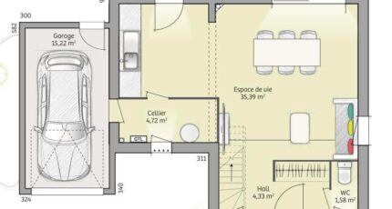
Il s'agit d'une maison de 2 niveaux. Son intérieur dispose de trois chambres, d'une cuisine et d'une salle de bains. Cette maison est neuve.
Le terrain de la propriété s'étend sur 699 m².
Il y a une école primaire dans le quartier. Côté transports, on trouve les gares Montargis et Ferrières-Fontenay à moins de 10 minutes en voiture. Les autoroutes A19 et A77 sont accessibles à moins de 6 km. Il y a un tennis, une boulangerie, un commerce, une épicerie et une boucherie-charcuterie à quelques minutes du bien.
Elle est à vendre pour la somme de 219 000 €.
Contactez Cedric YAHIAOUI (tél : 06-66-57-00-63) pour tout renseignement sur cette maison. Maisons France Confort Magny-le-Hongre vous accompagne dans tous vos projets immobiliers et dans toutes vos démarches.

Annonce proposée par un Agent Commercial Partenaire.

Mentions légales

Terrain proposé par un partenaire foncier selon disponibilités et autorisation de publicité au prix de 59 000 €. Hors droit d'enregistrement et frais de notaire. Terrain + Maison proposés au prix de 219 000 € (Hors branchements et raccordements, papiers peints, peintures, revêtement de sol dans les chambres. Tarif modifiable sans préavis). Etiquette énergie : A. Différents modèles disponibles pour ce terrain. Assurances et garanties du constructeur (RC professionnelle, décennale, dommage ouvrage, garantie de remboursement de l'acompte, livraison à prix et délai convenu) : https://www.maisons-france-confort.fr/mentions-legales/. HEXAOM Services est enregistré auprès de l'ORIAS en tant que Courtier en financement, Niveau 1, sous le numéro 14001345.

Contactez l'agence de Magny-le-Hongre

01 84 80 92 96

    * Champs obligatoires

    Vos informations sont traitées par HEXAOM et transmises à un conseiller commercial qui vous contactera afin de répondre à votre demande. Les plans et images présentés sur notre site sont la propriété d’HEXAOM et ne peuvent pas être reproduits sans son accord. Pour retrouver notre politique de protection des données personnelles et exercer vos droits conformément à la « loi informatique et liberté » cliquez-ici.