Maison neuve à
Cerny
(91590) Référence :
SA2323420_3
Prix du projet : Maison avec Terrain
prix 242 900 €
- 5 pièces
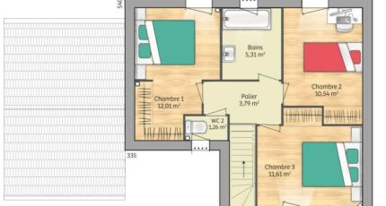
- 3 chambres
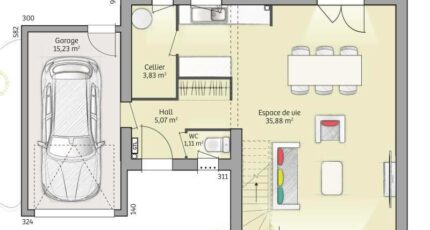
- Surface maison 90 m2
VENTE : maison de 5 pièces (90 m²) à Cerny
MAISON 5 PIÈCES NEUVE
À vendre : au pied du RER C (station Bouray, 30 min de Paris), à Cerny (91590), Maisons France Confort Ris-Orangis vous propose cette maison de 5 pièces de 90 m² et de 179 m² de terrain.
Cette maison comporte 2 niveaux. Elle offre trois chambres, une cuisine et une salle de bains. Cette maison est neuve.
L'École Élémentaire les Hélices Vertes et l'École Maternelle René Boinier sont implantées à moins de 10 minutes à pied. Côté transports, il y a les lignes de RER D et C ainsi que six gares à moins de 10 minutes en voiture. On trouve un tennis, une boulangerie et un commerce dans les environs.
Elle est proposée à l'achat pour 242 900 €.
Prenez contact avec Sabrina AUGUSTINE (06-23-03-68-32) pour toute question sur le bien ou sur les modalités de vente. Maisons France Confort Ris-Orangis est là pour vous accompagner dans toutes vos démarches.
Mentions légales
Terrain proposé par un partenaire foncier selon disponibilités et autorisation de publicité au prix de 61 000 €. Hors droit d'enregistrement et frais de notaire. Terrain + Maison proposés au prix de 181 900 € (Hors branchements et raccordements, papiers peints, peintures, revêtement de sol dans les chambres. Tarif modifiable sans préavis). Etiquette énergie : A. Différents modèles disponibles pour ce terrain. Assurances et garanties du constructeur (RC professionnelle, décennale, dommage ouvrage, garantie de remboursement de l'acompte, livraison à prix et délai convenu) : https://www.maisons-france-confort.fr/mentions-legales/. HEXAOM Services est enregistré auprès de l'ORIAS en tant que Courtier en financement, Niveau 1, sous le numéro 14001345.Agence Maisons France Confort de Ris-Orangis (91130)
- Téléphone :
- 01 60 47 83 15
- Adressse :
- 57 rue Albert Rémy
91130 Ris-Orangis, France
