Maison neuve à
Chambly
(60230) Référence :
FBhnonville85_4
Prix du projet : Maison avec Terrain
prix 287 000 €
- 5 pièces
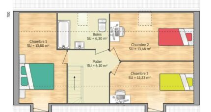
- 3 chambres
- Surface maison 80 m2
Hénonville : maison T5 (80 m²) à vendre
EMPLACEMENT PRIVILÉGIÉ - MAISON 5 PIÈCES NEUVE
Au pied du Transilien J (gare de La Villetertre, 1 h de Paris), à vendre bénéficiant d'un emplacement privilégié dans Hénonville (60119), nous sommes ravis de vous présenter cette maison de 5 pièces de 80 m².
Cette maison comporte 2 niveaux. Son intérieur comporte trois chambres, une cuisine et une salle de bains. Cette maison est neuve.
Le terrain de la propriété est de 640 m².
Cette maison est située dans un secteur attractif. On y trouve une école maternelle. Côté transports en commun, on trouve quatre gares à moins de 10 minutes en voiture. Il y a un accès à l'autoroute A16 à 10 km et Cergy se situe à 19 km. Il y a un tennis, une bibliothèque et une boucherie-charcuterie à quelques minutes à peine.
Son prix de vente est de 287 000 €.
N'hésitez pas à prendre contact avec notre agence (BONELLO Fabrice : 06-09-50-50-09) pour toute information sur la maison, sur les modalités de vente ou sur les démarches à suivre.
Mentions légales
Terrain proposé par un partenaire foncier selon disponibilités et autorisation de publicité au prix de 104 000 €. Hors droit d'enregistrement et frais de notaire. Terrain + Maison proposés au prix de 183 000 € (Hors branchements et raccordements, papiers peints, peintures, revêtement de sol dans les chambres. Tarif modifiable sans préavis). Etiquette énergie : A. Différents modèles disponibles pour ce terrain. Assurances et garanties du constructeur (RC professionnelle, décennale, dommage ouvrage, garantie de remboursement de l'acompte, livraison à prix et délai convenu) : https://www.maisons-france-confort.fr/mentions-legales/. HEXAOM Services est enregistré auprès de l'ORIAS en tant que Courtier en financement, Niveau 1, sous le numéro 14001345.Agence Maisons France Confort de Beauvais (60000)
- Téléphone :
- 03 44 04 40 04
- Adressse :
- 42 rue Pierre Jacoby
60000 Beauvais, France
