Maison neuve à
Champagne-sur-Seine
(77430) Référence :
AM2361138_1
Prix du projet : Maison avec Terrain
prix 405 368 €
- 5 pièces
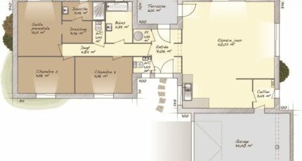
- 3 chambres
- Surface maison 120 m2
PROJET TERRAIN + MAISON + NOTAIRE + VIABILISATION = 405 368€
À vendre : à quelques kilomètres de Melun, bénéficiant d'un emplacement privilégié dans Champagne-sur-Seine (77430), venez découvrir cette maison de 5 pièces de plain-pied de 120 m² et de 658 m² de terrain.
Son intérieur compte trois chambres, une cuisine et deux salles de bains. La maison est neuve.
La propriété est située dans un quartier prisé. On trouve le Lycée Polyvalent la Fayette-Lycée des Métiers de l'Énergie, du Numérique et des Industries de Production Lycée des Métiers du Commerce à moins de 10 minutes à pied. Côté transports en commun, il y a la gare Champagne-sur-Seine dans les environs. On trouve une bibliothèque, plusieurs commerces et un supermarché à proximité du bien.
Elle est proposée à l'achat pour 405 368 €.
Contactez Arnaud MOINE (tél : 06-40-48-40-55) pour tout renseignement sur la maison ou sur les modalités de vente. Concrétisez vos projets immobiliers avec Maisons Balency Moret-Loing-et-Orvanne.
Annonce proposée par un Agent Commercial Partenaire.
Mentions légales
Terrain proposé par un partenaire foncier selon disponibilités et autorisation de publicité au prix de 99 000 €. Hors droit d'enregistrement et frais de notaire. Terrain + Maison proposés au prix de 306 368 € (Hors branchements et raccordements, papiers peints, peintures, revêtement de sol dans les chambres. Tarif modifiable sans préavis). Etiquette énergie : A. Différents modèles disponibles pour ce terrain. Assurances et garanties du constructeur (RC professionnelle, décennale, dommage ouvrage, garantie de remboursement de l'acompte, livraison à prix et délai convenu) : https://www.maisons-balency.fr/informations-legales/. HEXAOM Services est enregistré auprès de l'ORIAS en tant que Courtier en financement, Niveau 1, sous le numéro 14001345.Agence Maisons Balency de Moret-sur-Loing (77250)
- Téléphone :
- 09 78 81 26 91
- Adressse :
- 96 avenue de Fontainebleau
77250 Moret-sur-Loing, France
