Maison neuve à
Champagne-sur-Seine
(77430) Référence :
AM2361138_4
Prix du projet : Maison avec Terrain
prix 296 642 €
- 5 pièces
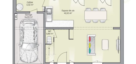
- 4 chambres
- Surface maison 101 m2
PROJET TERRAIN + MAISON + NOTAIRE + VIABILISATION = 296 642€
À vendre : située à 19 km de Melun, nous vous proposons cette maison de 5 pièces de plain-pied de 101 m², bénéficiant d'un emplacement privilégié dans Champagne-sur-Seine (77430). Conçue de plain-pied, elle compte quatre chambres, une cuisine et une salle de bains.
Le terrain de la maison s'étend sur 658 m².
La maison est neuve.
Cette propriété est située dans un secteur recherché. Il y a le Lycée Polyvalent la Fayette-Lycée des Métiers de l'Énergie, du Numérique et des Industries de Production Lycée des Métiers du Commerce à moins de 10 minutes à pied. Côté transports, on trouve la gare Champagne-sur-Seine à quelques pas de la maison. Il y a une bibliothèque, plusieurs commerces et un supermarché dans les environs.
Elle est proposée à l'achat pour 296 642 €.
Contactez Arnaud MOINE (tél : 06-40-48-40-55) pour toute question sur la maison ou sur les démarches à suivre. Donnez vie à vos projets immobiliers avec Maisons Balency Moret-Loing-et-Orvanne.
Annonce proposée par un Agent Commercial Partenaire.
Mentions légales
Terrain proposé par un partenaire foncier selon disponibilités et autorisation de publicité au prix de 99 000 €. Hors droit d'enregistrement et frais de notaire. Terrain + Maison proposés au prix de 197 642 € (Hors branchements et raccordements, papiers peints, peintures, revêtement de sol dans les chambres. Tarif modifiable sans préavis). Etiquette énergie : A. Différents modèles disponibles pour ce terrain. Assurances et garanties du constructeur (RC professionnelle, décennale, dommage ouvrage, garantie de remboursement de l'acompte, livraison à prix et délai convenu) : https://www.maisons-balency.fr/informations-legales/. HEXAOM Services est enregistré auprès de l'ORIAS en tant que Courtier en financement, Niveau 1, sous le numéro 14001345.Agence Maisons Balency de Moret-sur-Loing (77250)
- Téléphone :
- 09 78 81 26 91
- Adressse :
- 96 avenue de Fontainebleau
77250 Moret-sur-Loing, France
