Maison neuve à
Champcueil
(91750) Référence :
SA2325771_2
Prix du projet : Maison avec Terrain
prix 345 600 €
- 6 pièces
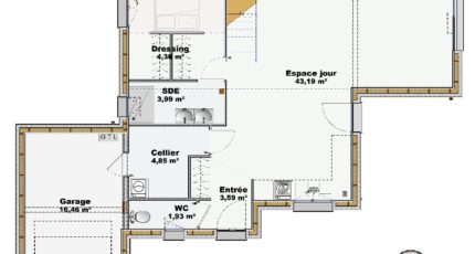
- 5 chambres
- Surface maison 114 m2
VENTE : maison de 6 pièces (114 m²) à Champcueil
MAISON 6 PIÈCES NEUVE
En vente : à 31 km de Créteil, laissez vous charmer par cette maison de 6 pièces de 114 m² et de 305 m² de terrain à Champcueil (91750).
Cette maison possède 2 niveaux. Son intérieur comporte cinq chambres, une cuisine et deux salles de bains. Cette maison est neuve.
L'École Élémentaire Chancolia, l'École Maternelle École Publique et le Collège Olympe de Gouges sont implantés à moins de 10 minutes à pied. Niveau transports, on trouve la ligne de RER D (Ballancourt) ainsi que 10 gares à moins de 10 minutes en voiture. Il y a une bibliothèque, un commerce, une boulangerie, une boucherie-charcuterie et un bureau de poste dans les environs.
Son prix de vente est de 345 600 €.
Contactez notre agence (AUGUSTINE Sabrina : 06-23-03-68-32) pour toute question sur la maison ou sur les modalités de vente. Faites de vos projets immobiliers une réalité avec Maisons France Confort Ris-Orangis.
Mentions légales
Terrain proposé par un partenaire foncier selon disponibilités et autorisation de publicité au prix de 141 000 €. Hors droit d'enregistrement et frais de notaire. Terrain + Maison proposés au prix de 204 600 € (Hors branchements et raccordements, papiers peints, peintures, revêtement de sol dans les chambres. Tarif modifiable sans préavis). Etiquette énergie : A. Différents modèles disponibles pour ce terrain. Assurances et garanties du constructeur (RC professionnelle, décennale, dommage ouvrage, garantie de remboursement de l'acompte, livraison à prix et délai convenu) : https://www.maisons-france-confort.fr/mentions-legales/. HEXAOM Services est enregistré auprès de l'ORIAS en tant que Courtier en financement, Niveau 1, sous le numéro 14001345.Agence Maisons France Confort de Ris-Orangis (91130)
- Téléphone :
- 01 60 47 83 15
- Adressse :
- 57 rue Albert Rémy
91130 Ris-Orangis, France
