Maison neuve à
Chartres
(28000) Référence :
CY2280506_1
Prix du projet : Maison avec Terrain
prix 345 000 €
- 5 pièces
- 3 chambres
- Surface maison 90 m2
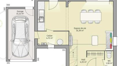
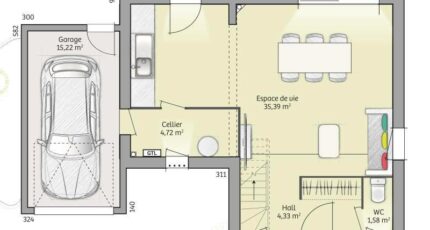
Maison T5 (90 m²) à vendre à Chartres
MAISON 5 PIÈCES NEUVE
À vendre à Chartres (28000), nous vous proposons cette maison de 5 pièces de 90 m².
Cette maison comporte 2 niveaux. Son intérieur compte trois chambres, une cuisine et une salle de bains. Cette maison est neuve.
Le terrain du bien s'étend sur 610 m².
Des écoles (de la maternelle au lycée) sont implantées à moins de 10 minutes à pied, tout comme une structure d'accueil pour les tout-petits. Côté transports en commun, il y a la gare Chartres à quelques pas de la maison. L'autoroute A11 et les nationales N123 et N154 sont accessibles à moins de 4 km. On trouve des commerces, des boulangeries, deux supermarchés, une poissonnerie et deux bureaux de poste à proximité. Enfin, le marché Place Billard anime le quartier tous les samedis matin.
Il est à vendre pour la somme de 345 000 €.
Contactez Cedric YAHIAOUI (06-66-57-00-63) pour plus d'informations sur la maison, sur les démarches à suivre et sur les modalités de vente. Maisons France Confort Magny-le-Hongre est là pour vous accompagner dans tous vos projets immobiliers.
Annonce proposée par un Agent Commercial Partenaire.
Mentions légales
Terrain proposé par un partenaire foncier selon disponibilités et autorisation de publicité au prix de 170 000 €. Hors droit d'enregistrement et frais de notaire. Maison proposée, avec un contrat de construction de maison individuelle, dans le cadre de la loi du 19/12/1990, au prix de 175 000 € (Hors branchements et raccordements, papiers peints, peintures, revêtement de sol dans les chambres, qui sont chiffrés dans les travaux qui restent à charge du client. Tarif modifiable sans préavis). Étiquette énergie : A. Différents modèles disponibles pour ce terrain. Assurances et garanties du constructeur comprises (RC professionnelle, décennale, dommage ouvrage).Agence Maisons France Confort de Magny-le-Hongre (77700)
- Téléphone :
- 01 84 80 92 96
- Adressse :
- 11 rue de Courtalin
77700 Magny-le-Hongre, France
