Maison neuve à
Chaumont-en-Vexin
(60240) Référence :
CY2316084_2
Prix du projet : Maison avec Terrain
prix 255 000 €
- 5 pièces
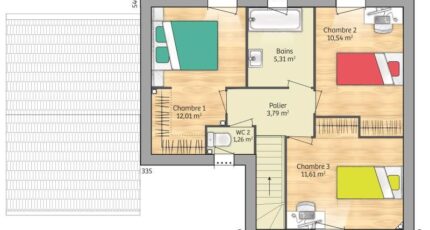
- 3 chambres
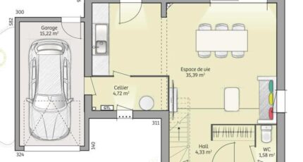
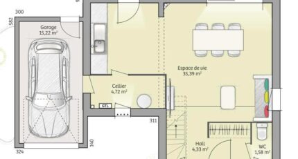
- Surface maison 90 m2
Chaumont-en-Vexin : maison F5 (90 m²) en vente
PROCHE GARE - MAISON 5 PIÈCES NEUVE
À vendre : à côté de la gare (Paris à 1 h par le Transilien J), dans Chaumont-en-Vexin (60240), proche de la gare, venez découvrir cette maison de 5 pièces de 90 m² et de 660 m² de terrain.
Cette maison comporte 2 niveaux. Elle offre trois chambres, une cuisine et une salle de bains. La maison est neuve.
On trouve l'École Maternelle Roger Blondeau, l'École Élémentaire Roger Blondeau et le Collège Saint-Exupéry à moins de 10 minutes à pied. Niveau transports, il y a la gare Chaumont-en-Vexin dans un rayon de 1 km. La nationale N31 est accessible à 17 km et Cergy se trouve à 29 km. Il y a quatre commerces, une boulangerie, deux supermarchés, une épicerie et une boucherie-charcuterie à quelques minutes à peine.
Elle est à vendre pour la somme de 255 000 €.
N'hésitez pas à prendre contact avec notre agence (Cedric YAHIAOUI : 06-66-57-00-63) pour tout renseignement sur la maison, sur les démarches à suivre ou sur les modalités de vente. Maisons France Confort Magny-le-Hongre vous accompagne à toutes les étapes de votre projet et dans tous vos projets immobiliers.
Annonce proposée par un Agent Commercial Partenaire.
Mentions légales
Terrain proposé par un partenaire foncier selon disponibilités et autorisation de publicité au prix de 75 900 €. Hors droit d'enregistrement et frais de notaire. Maison proposée, avec un contrat de construction de maison individuelle, dans le cadre de la loi du 19/12/1990, au prix de 179 100 € (Hors branchements et raccordements, papiers peints, peintures, revêtement de sol dans les chambres, qui sont chiffrés dans les travaux qui restent à charge du client. Tarif modifiable sans préavis). Étiquette énergie : A. Différents modèles disponibles pour ce terrain. Assurances et garanties du constructeur comprises (RC professionnelle, décennale, dommage ouvrage).Agence Maisons France Confort de Magny-le-Hongre (77700)
- Téléphone :
- 01 84 80 92 96
- Adressse :
- 11 rue de Courtalin
77700 Magny-le-Hongre, France
