Maison neuve à
Clermont
(60600) Référence :
FBcambronnelesclerm5_2
Prix du projet : Maison avec Terrain
prix 317 000 €
- 6 pièces
- 4 chambres
- Surface maison 105 m2
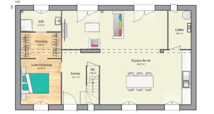
Maison F6 (105 m²) en vente à Cambronne-lès-Clermont
EMPLACEMENT PRIVILÉGIÉ - MAISON 6 PIÈCES NEUVE
En vente : à quelques minutes du RER D (station Creil, 50 min de Paris), Maisons France Confort Beauvais vous propose cette maison de 6 pièces de 105 m² et de 507 m² de terrain bénéficiant d'un emplacement privilégié dans Cambronne-lès-Clermont (60290).
Cette maison comporte 2 niveaux. Elle propose quatre chambres, une cuisine et deux salles de bains. Cette maison est neuve.
Cette maison se trouve dans un secteur prisé. Une école primaire y est implantée. Côté transports en commun, il y a la station de RER Creil (ligne D) ainsi que 12 gares à moins de 10 minutes en voiture. La nationale N31 est accessible à 7 km et Beauvais est située à 26 km. On trouve une bibliothèque et une boulangerie à proximité de la maison.
Son prix de vente est de 317 000 €.
N'hésitez pas à prendre contact avec notre agence (BONELLO Fabrice : 06-09-50-50-09) pour toute information sur la maison ou sur les modalités de vente. Maisons France Confort Beauvais est là pour vous accompagner à toutes les étapes de l'achat.
Mentions légales
Terrain proposé par un partenaire foncier selon disponibilités et autorisation de publicité au prix de 89 500 €. Hors droit d'enregistrement et frais de notaire. Terrain + Maison proposés au prix de 227 500 € (Hors branchements et raccordements, papiers peints, peintures, revêtement de sol dans les chambres. Tarif modifiable sans préavis). Etiquette énergie : A. Différents modèles disponibles pour ce terrain. Assurances et garanties du constructeur (RC professionnelle, décennale, dommage ouvrage, garantie de remboursement de l'acompte, livraison à prix et délai convenu) : https://www.maisons-france-confort.fr/mentions-legales/. HEXAOM Services est enregistré auprès de l'ORIAS en tant que Courtier en financement, Niveau 1, sous le numéro 14001345.Agence Maisons France Confort de Beauvais (60000)
- Téléphone :
- 03 44 04 40 04
- Adressse :
- 42 rue Pierre Jacoby
60000 Beauvais, France
