Maison neuve à
Clermont
(60600) Référence :
FBclermont63_13
Prix du projet : Maison avec Terrain
prix 258 000 €
- 5 pièces
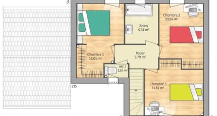
- 3 chambres
- Surface maison 90 m2
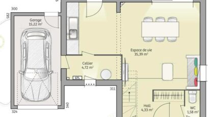
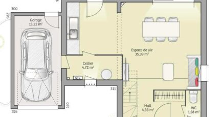
VENTE d'une maison de 5 pièces (90 m²) à Clermont
PROCHE GARE - MAISON 5 PIÈCES NEUVE
À vendre : localisée à deux pas de Beauvais, nous vous proposons cette maison de 5 pièces de 90 m² et de 367 m² de terrain proche de la gare de Clermont (60600). Son intérieur est composé de trois chambres, d'une cuisine et d'une salle de bains.
C'est une maison de 2 niveaux. Elle est neuve.
Il y a des écoles maternelles et élémentaires à moins de 10 minutes à pied. Niveau transports en commun, on trouve cinq gares à moins de 10 minutes en voiture. La nationale N31 est accessible à 2 km. Il y a une bibliothèque, des boulangeries, des commerces, un supermarché, trois boucheries-charcuteries et un bureau de poste dans les environs.
Elle est à vendre pour la somme de 258 000 €.
Prenez contact avec notre agence (BONELLO Fabrice : 06-09-50-50-09) pour tout renseignement sur la maison, sur les modalités de vente ou sur les démarches à suivre. Maisons France Confort Beauvais vous accompagne à toutes les étapes de l'achat et dans tous vos projets immobiliers.
Mentions légales
Terrain proposé par un partenaire foncier selon disponibilités et autorisation de publicité au prix de 59 000 €. Hors droit d'enregistrement et frais de notaire. Terrain + Maison proposés au prix de 199 000 € (Hors branchements et raccordements, papiers peints, peintures, revêtement de sol dans les chambres. Tarif modifiable sans préavis). Etiquette énergie : A. Différents modèles disponibles pour ce terrain. Assurances et garanties du constructeur (RC professionnelle, décennale, dommage ouvrage, garantie de remboursement de l'acompte, livraison à prix et délai convenu) : https://www.maisons-france-confort.fr/mentions-legales/. HEXAOM Services est enregistré auprès de l'ORIAS en tant que Courtier en financement, Niveau 1, sous le numéro 14001345.Agence Maisons France Confort de Beauvais (60000)
- Téléphone :
- 03 44 04 40 04
- Adressse :
- 42 rue Pierre Jacoby
60000 Beauvais, France
