Maison neuve à
Clermont
(60600) Référence :
FBclermont63_6
Prix du projet : Maison avec Terrain
prix 263 000 €
- 5 pièces
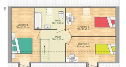
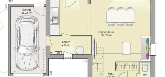
- 3 chambres
- Surface maison 80 m2
Clermont : maison T5 (80 m²) en vente
PROCHE GARE - MAISON 5 PIÈCES NEUVE
À vendre à 24 km de Beauvais, venez découvrir, dans Clermont (60600), proche de la gare, cette maison de 5 pièces de 80 m² et de 367 m² de terrain.
C'est une maison de 2 niveaux. Son intérieur est composé de trois chambres, d'une cuisine et d'une salle de bains. Cette maison est neuve.
On trouve des écoles maternelles et élémentaires à moins de 10 minutes à pied. Côté transports, il y a cinq gares à moins de 10 minutes en voiture. On trouve un accès à la nationale N31 à 2 km. On trouve une bibliothèque, des boulangeries, des commerces, un supermarché, trois boucheries-charcuteries et un bureau de poste à quelques minutes à peine.
Elle est proposée à l'achat pour 263 000 €.
N'hésitez pas à prendre contact avec Fabrice BONELLO (06-09-50-50-09) pour obtenir de plus amples renseignements sur la maison ou sur les modalités de vente. Maisons France Confort Beauvais vous accompagne dans tous vos projets immobiliers et à toutes les étapes de votre projet.
Mentions légales
Terrain proposé par un partenaire foncier selon disponibilités et autorisation de publicité au prix de 59 000 €. Hors droit d'enregistrement et frais de notaire. Terrain + Maison proposés au prix de 204 000 € (Hors branchements et raccordements, papiers peints, peintures, revêtement de sol dans les chambres. Tarif modifiable sans préavis). Etiquette énergie : A. Différents modèles disponibles pour ce terrain. Assurances et garanties du constructeur (RC professionnelle, décennale, dommage ouvrage, garantie de remboursement de l'acompte, livraison à prix et délai convenu) : https://www.maisons-france-confort.fr/mentions-legales/. HEXAOM Services est enregistré auprès de l'ORIAS en tant que Courtier en financement, Niveau 1, sous le numéro 14001345.Agence Maisons France Confort de Beauvais (60000)
- Téléphone :
- 03 44 04 40 04
- Adressse :
- 42 rue Pierre Jacoby
60000 Beauvais, France
