Maison neuve à
Dampmart (77400) Référence : FS2353525_5

Prix du projet : Maison avec Terrain

prix 365 054 €

  • 5 pièces
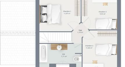
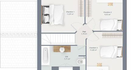
  • 3 chambres
  • Surface maison 80 m2

Dampmart : maison de 5 pièces (80 m²) en vente
IDÉALEMENT SITUÉE - MAISON 5 PIÈCES NEUVE
En vente : à côté du Transilien P (gare de Lagny-Thorigny, 25 min de Paris), Maisons France Confort Mareuil-lès-Meaux vous présente cette maison de 5 pièces de 80 m² idéalement située dans Dampmart (77400). Elle propose trois chambres, une cuisine et une salle de bains.
Le terrain du bien s'étend sur 477 m².
Il s'agit d'une maison de 2 niveaux. Elle est neuve.
La maison se trouve dans un quartier recherché. Il y a l'École Maternelle Emile Blanchet, l'École Élémentaire les Vallières et le Lycée Professionnel Auguste Perdonnet à moins de 10 minutes à pied et une structure d'accueil pour la petite enfance. Niveau transports, on trouve la ligne de RER A (Chessy-Marne-La-Vallée) ainsi que six gares à moins de 10 minutes en voiture. On trouve un commerce, une épicerie et un bureau de poste à proximité.
Elle est à vendre pour la somme de 365 054 €.
Contactez notre agence (SOUMARMON Félix : 06-10-24-97-84) pour toute information sur la maison, sur les modalités de vente ou sur les démarches à suivre. Faites de vos projets immobiliers une réalité avec Maisons France Confort Mareuil-lès-Meaux.

Annonce proposée par un Agent Commercial Partenaire.

Mentions légales

Terrain proposé par un partenaire foncier selon disponibilités et autorisation de publicité au prix de 180 000 €. Hors droit d'enregistrement et frais de notaire. Maison proposée, avec un contrat de construction de maison individuelle, dans le cadre de la loi du 19/12/1990, au prix de 185 054 € (Hors branchements et raccordements, papiers peints, peintures, revêtement de sol dans les chambres, qui sont chiffrés dans les travaux qui restent à charge du client. Tarif modifiable sans préavis). Étiquette énergie : A. Différents modèles disponibles pour ce terrain. Assurances et garanties du constructeur comprises (RC professionnelle, décennale, dommage ouvrage).

Contactez l'agence de Mareuil-lès-Meaux

01 60 09 28 30

    * Champs obligatoires

    Vos informations sont traitées par HEXAOM et transmises à un conseiller commercial qui vous contactera afin de répondre à votre demande. Les plans et images présentés sur notre site sont la propriété d’HEXAOM et ne peuvent pas être reproduits sans son accord. Pour retrouver notre politique de protection des données personnelles et exercer vos droits conformément à la « loi informatique et liberté » cliquez-ici.