Maison neuve à
Donneville
(31450) Référence :
TL2421317_1
Prix du projet : Maison avec Terrain
prix 549 000 €
- 6 pièces
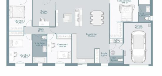
- 5 chambres
- Surface maison 186 m2
Une villa d'exception sur mesure à DONNEVILLE
Découvrez un projet de vie unique : une villa contemporaine de 186 m² sur un terrain de 800 m², alliant modernité et confort dans le cadre prisé de DONNEVILLE. Conçu pour les familles exigeantes, ce bien offre des prestations haut de gamme et un agencement optimisé pour votre bien-être.
Un espace de vie pensé pour le quotidien
Vaste pièce à vivre de 56 m² : Une cuisine ouverte et un cellier attenant s'intègrent parfaitement à cet espace, créant un lieu de convivialité et de partage.
Salon TV séparé de 16 m² : Profitez d'un espace dédié à la détente et au divertissement, idéal pour les soirées cinéma en famille ou les moments de tranquillité.
5 chambres, 2 salles de bains, 2 WC séparés : L'agencement en étage partiel permet de créer des espaces nuit distincts, préservant l'intimité de chacun.
Des prestations de qualité supérieure
Architecture moderne : Des lignes épurées et des volumes généreux créent une atmosphère lumineuse et aérée.
Garage de 27 m² : Un espace fonctionnel pour abriter vos véhicules ou pour du rangement supplémentaire.
Terrasse de 30 m² et porche d'entrée : Des espaces extérieurs élégants pour profiter des beaux jours et recevoir vos invités.
Le meilleur des deux mondes
Ce projet "terrain + maison" est proposé à partir de 549 000 € (hors frais de notaire et annexes).
Situé à quelques minutes de Toulouse, Donneville offre un environnement paisible avec toutes les commodités essentielles à proximité (écoles, commerces, services de santé). C'est le compromis idéal entre la quiétude de la campagne et l'accès facile aux services urbains.
Pour plus d'informations et pour concrétiser votre projet de vie, contactez dès maintenant l'agence Maisons France Confort de Saint-Orens au 05.61.73.11.84. Ne laissez pas passer cette opportunité d'investir dans une propriété d'exception.
Annonce proposée par un Agent Commercial Partenaire.
Mentions légales
Terrain proposé par un partenaire foncier selon disponibilités et autorisation de publicité au prix de 149 000 €. Hors droit d'enregistrement et frais de notaire. Terrain + Maison proposés au prix de 549 000 € (Hors branchements et raccordements, papiers peints, peintures, revêtement de sol dans les chambres. Tarif modifiable sans préavis). Etiquette énergie : A. Différents modèles disponibles pour ce terrain. Assurances et garanties du constructeur (RC professionnelle, décennale, dommage ouvrage, garantie de remboursement de l'acompte, livraison à prix et délai convenu) : https://www.maisons-france-confort.fr/mentions-legales/. HEXAOM Services est enregistré auprès de l'ORIAS en tant que Courtier en financement, Niveau 1, sous le numéro 14001345.Agence Maisons France Confort de Saint-Orens-de-Gameville (31650)
- Téléphone :
- 05 61 73 11 84
- Adressse :
- 1 rue de la plaine
31650 Saint-Orens-de-Gameville, France
