Maison neuve à
Floirac
(33270) Référence :
DC2381481_2
Prix du projet : Maison avec Terrain
prix 276 910 €
- 3 pièces
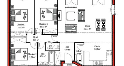
- 3 chambres
- Surface maison 85 m2
VENTE : maison de 3 pièces (85 m²) à Floirac
IDÉALEMENT SITUÉE - MAISON 3 PIÈCES NEUVE
À 9 km de Bordeaux, découvrez cette maison de 3 pièces de plain-pied de 85 m² en vente, idéalement située dans Floirac (33270).
Conçue de plain-pied, elle propose trois chambres, une cuisine et une salle de bains. La maison est neuve.
Le terrain du bien s'étend sur 300 m².
La maison se trouve dans un secteur convoité. Il y a des écoles primaires à moins de 10 minutes à pied, tout comme une crèche. Côté transports en commun, on trouve 11 gares à moins de 10 minutes en voiture. Les autoroutes A630 et A10 et les nationales N230 et N89 sont accessibles à moins de 7 km. Il y a un bassin de natation, une bibliothèque, une boulangerie, des commerces, un supermarché, un bureau de poste et une boucherie-charcuterie à quelques minutes du logement.
Elle est proposée à l'achat pour 276 910 €.
N'hésitez pas à prendre contact avec David CAZAUBON (O6-11-78-42-56) pour plus de renseignements sur la maison. Faites de vos projets immobiliers une réalité avec Batisoft Bordeaux.
Mentions légales
Idée de réalisation en modèle prêt à décorer sur l’un de nos terrains partenaires, sous réserve de disponibilités. Voir détails en agence.Agence Batisoft de Bordeaux (33000)
- Téléphone :
- 05 35 37 13 70
- Adressse :
- Village Homexpo - Parc des expositions
33000 Bordeaux, France
