Maison neuve à
Gisors
(27140) Référence :
FBeragnysepte-0_2
Prix du projet : Maison avec Terrain
prix 264 000 €
- 5 pièces
- 3 chambres
- Surface maison 90 m2
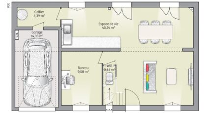
VENTE d'une maison de 5 pièces (90 m²) à Éragny-sur-Epte
PROCHE GARE - MAISON 5 PIÈCES NEUVE
En vente : au pied de la gare de Gisors (Paris à 1 h avec le Transilien J), dans Éragny-sur-Epte (60590), proche de la gare, Maisons France Confort Beauvais vous présente cette maison de 5 pièces de 90 m². Son intérieur est composé de trois chambres, d'une cuisine et d'une salle de bains.
Le terrain du bien s'étend sur 457 m².
Cette maison possède 2 niveaux. Elle est neuve.
On trouve l'École Primaire Jean Mermoz à moins de 10 minutes à pied. Niveau transports, il y a quatre gares à moins de 10 minutes en voiture. On trouve un accès à la nationale N31 à 19 km et Beauvais est située à 26 km. On trouve un tennis et une bibliothèque à quelques minutes.
Son prix de vente est de 264 000 €.
N'hésitez pas à prendre contact avec notre agence (Fabrice BONELLO : 06-09-50-50-09) pour plus d'informations sur la maison ou sur les modalités de vente.
Mentions légales
Terrain proposé par un partenaire foncier selon disponibilités et autorisation de publicité au prix de 68 900 €. Hors droit d'enregistrement et frais de notaire. Terrain + Maison proposés au prix de 195 100 € (Hors branchements et raccordements, papiers peints, peintures, revêtement de sol dans les chambres. Tarif modifiable sans préavis). Etiquette énergie : A. Différents modèles disponibles pour ce terrain. Assurances et garanties du constructeur (RC professionnelle, décennale, dommage ouvrage, garantie de remboursement de l'acompte, livraison à prix et délai convenu) : https://www.maisons-france-confort.fr/mentions-legales/. HEXAOM Services est enregistré auprès de l'ORIAS en tant que Courtier en financement, Niveau 1, sous le numéro 14001345.Agence Maisons France Confort de Beauvais (60000)
- Téléphone :
- 03 44 04 40 04
- Adressse :
- 42 rue Pierre Jacoby
60000 Beauvais, France
