Maison neuve à
Gisors
(27140) Référence :
FBeragnysepte-0_3
Prix du projet : Maison avec Terrain
prix 247 000 €
- 5 pièces
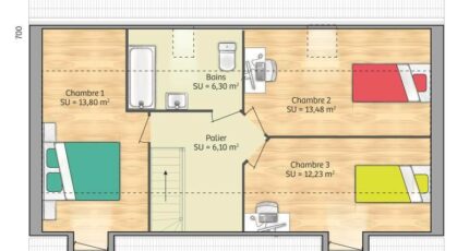
- 3 chambres
- Surface maison 80 m2
Maison F5 (80 m²) à vendre à Éragny-sur-Epte
PROCHE GARE - MAISON 5 PIÈCES NEUVE
Au pied du Transilien J (gare de Gisors, 1 h de Paris), notre agence Maisons France Confort Beauvais est ravie de vous présenter cette maison de 5 pièces de 80 m² dans Éragny-sur-Epte (60590), proche de la gare.
Cette maison compte 2 niveaux. Son intérieur est composé de trois chambres, d'une cuisine et d'une salle de bains. La maison est neuve.
Le terrain du bien s'étend sur 457 m².
On trouve l'École Primaire Jean Mermoz à moins de 10 minutes à pied. Niveau transports, il y a quatre gares à moins de 10 minutes en voiture. La nationale N31 est accessible à 19 km et Beauvais est située à 26 km. Il y a un tennis et une bibliothèque à quelques minutes.
Il est proposé à l'achat pour 247 000 €.
Prenez contact avec notre agence (BONELLO Fabrice : 06-09-50-50-09) pour tout renseignement sur la maison, sur les démarches à suivre ou sur les modalités de vente. Maisons France Confort Beauvais est là pour vous accompagner à toutes les étapes de l'achat.
Mentions légales
Terrain proposé par un partenaire foncier selon disponibilités et autorisation de publicité au prix de 68 900 €. Hors droit d'enregistrement et frais de notaire. Terrain + Maison proposés au prix de 178 100 € (Hors branchements et raccordements, papiers peints, peintures, revêtement de sol dans les chambres. Tarif modifiable sans préavis). Etiquette énergie : A. Différents modèles disponibles pour ce terrain. Assurances et garanties du constructeur (RC professionnelle, décennale, dommage ouvrage, garantie de remboursement de l'acompte, livraison à prix et délai convenu) : https://www.maisons-france-confort.fr/mentions-legales/. HEXAOM Services est enregistré auprès de l'ORIAS en tant que Courtier en financement, Niveau 1, sous le numéro 14001345.Agence Maisons France Confort de Beauvais (60000)
- Téléphone :
- 03 44 04 40 04
- Adressse :
- 42 rue Pierre Jacoby
60000 Beauvais, France
