Maison neuve à
Givrand
(85800) Référence :
NR2452123_4
Prix du projet : Maison avec Terrain
prix 208 900 €
- 2 pièces
- 3 chambres
- Surface maison 79 m2
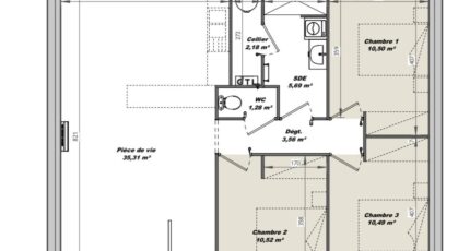
VENTE : maison T2 (79 m²) à Givrand
EMPLACEMENT PRIVILÉGIÉ - MAISON 2 PIÈCES NEUVE
En vente : sur la côte atlantique, bénéficiant d'un emplacement d'exception dans Givrand (85800), notre agence LMP Constructeur Saint-Gilles-Croix-de-Vie est ravie de vous proposer cette maison de 2 pièces de plain-pied de 79 m². Elle est composée de trois chambres, d'une cuisine et d'une salle de bains.
Le terrain de cette maison s'étend sur 273 m².
Cette maison est neuve.
La maison se situe dans un secteur prisé. On trouve l'École Primaire Privée la Fontaine à moins de 10 minutes à pied. Niveau transports en commun, il y a les gares Saint-Gilles-Croix-de-Vie et Saint-Hilaire-de-Riez à moins de 10 minutes en voiture. On trouve un commerce à proximité du logement.
Son prix de vente est de 208 900 €.
Contactez Nicolas RISSELIN (06-80-33-03-82) pour obtenir de plus amples renseignements sur la maison ou sur les modalités de vente.
Mentions légales
Terrain proposé par un partenaire foncier selon disponibilités et autorisation de publicité au prix de 72 200 €. Hors droit d'enregistrement et frais de notaire. Terrain + Maison proposés au prix de 208 900 € (Hors branchements et raccordements, papiers peints, peintures, revêtement de sol dans les chambres. Tarif modifiable sans préavis). Etiquette énergie : A. Différents modèles disponibles pour ce terrain. Assurances et garanties du constructeur (RC professionnelle, décennale, dommage ouvrage, garantie de remboursement de l'acompte, livraison à prix et délai convenu) : https://www.lmp-constructeur.com/mentions-legales/.Agence Logis du Marais Poitevin de Saint-Gilles-Croix-de-Vie (85800)
- Téléphone :
- 02 51 55 34 29
- Adressse :
- 5 rue Gautté
85800 Saint-Gilles-Croix-de-Vie, France
