Maison neuve à
Gujan-Mestras
(33470) Référence :
LB2344700_3
Prix du projet : Maison avec Terrain
prix 755 000 €
- 7 pièces
- 4 chambres
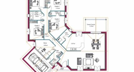
- Surface maison 146 m2
Maison F7 (146 m²) en vente à Gujan-Mestras
IDÉALEMENT SITUÉE - MAISON 7 PIÈCES NEUVE
Sur la côte atlantique, nous sommes ravis de vous proposer en vente, idéalement située dans Gujan-Mestras (33470), cette maison de 7 pièces de plain-pied de 146 m² et de 1 050 m² de terrain.
Son intérieur est composé de quatre chambres, d'une cuisine et de deux salles de bains. La maison est neuve.
Ce bien se trouve dans un quartier recherché. Il y a des écoles maternelles et élémentaires à moins de 10 minutes à pied. Niveau transports en commun, on trouve la gare Gujan-Mestras à quelques pas du bien. On trouve un accès à l'autoroute A660 à 5 km. Il y a quatre boulangeries, des commerces, un supermarché, trois poissonneries et un bureau de poste à quelques minutes du logement. Ne manquez pas le marché Place de la Gare tous les mercredis matin.
Il est à vendre pour la somme de 755 000 €.
Contactez notre agence (BOLZER Laurent : O6-50-16-05-30) pour obtenir de plus amples renseignements sur la maison, sur les modalités de vente ou sur les démarches à suivre. Concrétisez vos projets immobiliers avec Maisons de la Côte Atlantique Biganos.
Agence Maisons de la Côte Atlantique de Biganos (33380)
- Téléphone :
- 05 56 26 93 18
- Adressse :
- 203 bis, Avenue de La Côte d'Argent
33380 Biganos, France
