Maison neuve à
Hermes
(60370) Référence :
FBhermes95-0_5
Prix du projet : Maison avec Terrain
prix 242 000 €
- 5 pièces
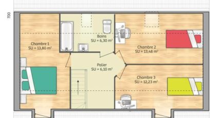
- 3 chambres
- Surface maison 80 m2
Hermes : maison de 5 pièces (80 m²) à vendre
EMPLACEMENT PRIVILÉGIÉ - MAISON 5 PIÈCES NEUVE
À deux pas de Beauvais, à vendre bénéficiant d'un emplacement d'exception dans Hermes (60370), Maisons France Confort Beauvais vous présente cette maison de 5 pièces de 80 m² et de 540 m² de terrain. Son intérieur inclut trois chambres, une cuisine et une salle de bains.
C'est une maison de 2 niveaux. Elle est neuve.
La maison se trouve dans un secteur recherché. Il y a l'École Élémentaire Elsa Triolet, l'École Maternelle Louis Aragon et l'École Élémentaire Edmond Leveille à moins de 10 minutes à pied. Côté transports en commun, on trouve la gare Hermes-Berthecourt juste à côté. L'autoroute A16 et la nationale N31 sont accessibles à moins de 10 km. Il y a deux tennis, une bibliothèque, une boulangerie, un supermarché, trois boucheries-charcuteries et un bureau de poste à quelques minutes du bien.
Son prix de vente est de 242 000 €.
Contactez Fabrice BONELLO (tél : 06-09-50-50-09) pour plus d'informations sur la maison. Faites de vos projets immobiliers une réalité avec Maisons France Confort Beauvais.
Mentions légales
Terrain proposé par un partenaire foncier selon disponibilités et autorisation de publicité au prix de 65 000 €. Hors droit d'enregistrement et frais de notaire. Terrain + Maison proposés au prix de 177 000 € (Hors branchements et raccordements, papiers peints, peintures, revêtement de sol dans les chambres. Tarif modifiable sans préavis). Etiquette énergie : A. Différents modèles disponibles pour ce terrain. Assurances et garanties du constructeur (RC professionnelle, décennale, dommage ouvrage, garantie de remboursement de l'acompte, livraison à prix et délai convenu) : https://www.maisons-france-confort.fr/mentions-legales/. HEXAOM Services est enregistré auprès de l'ORIAS en tant que Courtier en financement, Niveau 1, sous le numéro 14001345.Agence Maisons France Confort de Beauvais (60000)
- Téléphone :
- 03 44 04 40 04
- Adressse :
- 42 rue Pierre Jacoby
60000 Beauvais, France
